EasyManua.ls Logo

Daikin FTY25GXV1 - Check; Thermistor Resistance Check

Daikin FTY25GXV1
124 pages
Print Icon
To Next Page IconTo Next Page
To Next Page IconTo Next Page
To Previous Page IconTo Previous Page
To Previous Page IconTo Previous Page
Loading...
SiBE01-829 Check
Service Diagnosis 55
5. Check
5.1 Thermistor Resistance Check
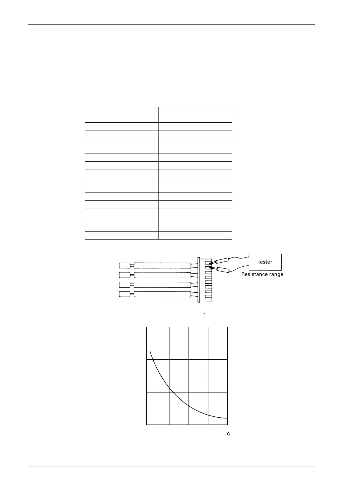
Check No.06 Remove the connectors of the thermistors on the PCB, and measure the resistance of each
thermistor using tester.
The relationship between normal temperature and resistance is shown in the graph and the
table below.
R25°C=10k B=3450
Temperature (°C) Thermistor (k)
–20 72.7
–15 56.6
–10 44.5
–5 35.2
028.0
522.5
10 18.2
15 14.8
20 12.1
25 10.0
30 8.3
35 6.9
40 5.8
45 4.9
50 4.1
(R4744)
(R25=10k
B=3450)
75
50
25
0
–15
0
15 30
45
(k)
(
)

Table of Contents

Other manuals for Daikin FTY25GXV1

Related product manuals