EasyManua.ls Logo

Daikin FWF-BT - Dimensional Drawings with Accessories

Daikin FWF-BT
41 pages
Print Icon
To Next Page IconTo Next Page
To Next Page IconTo Next Page
To Previous Page IconTo Previous Page
To Previous Page IconTo Previous Page
Loading...
Fan coil • Indoor Unit
31
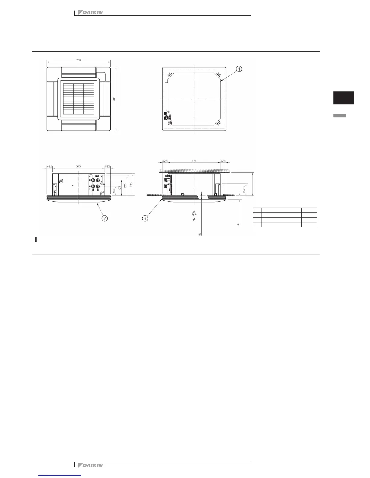
Indoor Unit • 4-way blow ceiling mounted cassette • FWF-BF
7 Dimensional drawings
7 - 2 Dimensional Drawings with Accessories
2
7
Item Part name Remark
1 Indoor unit .
2 Decoration panel .
3 Panel spacer .
1. Number of pipe connections and air purges is depending on model type.
3TW33044-2
NOTES
Dimension between the bottom surface
of indoor unit and the surface of ceiling
Thickness of panel spacer
250 or more
VIEW A
FWF-BT/BF (with optional accessory)
ECDEN11-400_FWF-BT-BF.pdf 31 1/03/2011 16:20:05

Related product manuals