EasyManua.ls Logo

Daikin LRLEQ5AY1(E) - Page 146

Daikin LRLEQ5AY1(E)
156 pages
Print Icon
To Next Page IconTo Next Page
To Next Page IconTo Next Page
To Previous Page IconTo Previous Page
To Previous Page IconTo Previous Page
Loading...
SiENBE28-901 Troubleshooting
Air Cooled Refrigeration Condensing Unit 145
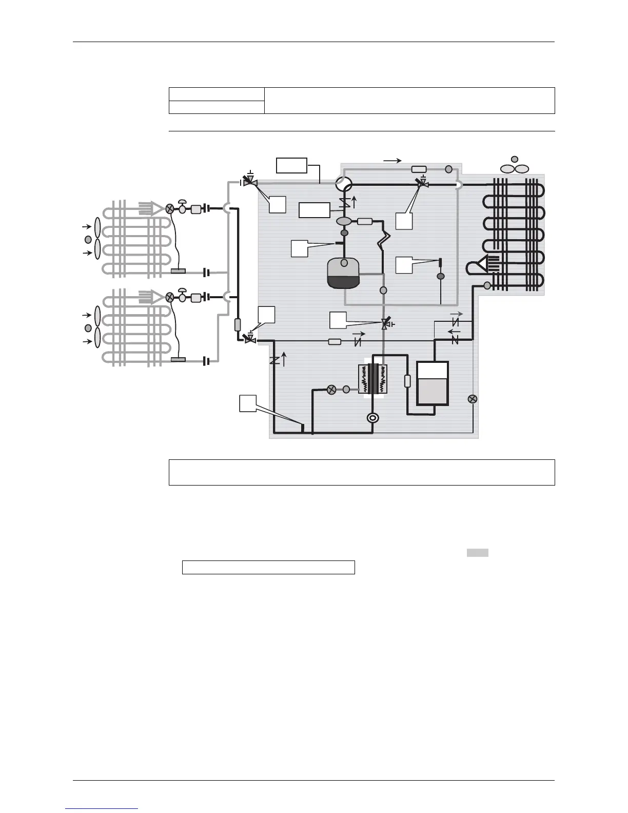
2) Maintenance 2: Maintenance of EV1 and EV2
No continuous operations allowed
1. Turn off the operation switch for the outdoor unit. After the outdoor unit has stopped, turn off
the power supply for the outdoor unit.
2. Remove the control box.
3. Close the stop valves in the order: C and D.
4. Recover the refrigerant in the compressor through service ports c, b. ( shaped region.)
After replacing parts, check whether the dryer is WET or DRY using the moisture indicator.
If it is WET, replace the dryer.
5. Conduct air tight checks.
6. Conduct vacuuming through the service port c and b.
(Then charge the refrigerant according to the quantity as that recovered. And then continue
vacuuming.)
7. Turn on the power supply for the outdoor unit. Then turn on the operation switch for the
outdoor unit.
(If a remote controller switch is used, enable the remote setting.)
8. Charge the refrigerant by the same quantity as that recovered.
Applicable parts
• Main electronic expansion valve
• Injection electronic expansion valve
1 compressor
HPSL
HPS1
D
a
C
B
A
b
HP
Td1
INV
EV2
TL
c
EV1
Tg
LP
Tce
A: Discharge line maintenance valve B: Injection line maintenance valve C: Liquid stop valve
D: Gas stop valve a, b, c: Service ports
Repair or replace the applicable parts.

Related product manuals