EasyManua.ls Logo

Daikin MPS025B - Dimensional Data - Duct and Curb; Horizontal Duct Connection Dimensions; Roof Curb Installation Dimensions

Daikin MPS025B
52 pages
Print Icon
To Next Page IconTo Next Page
To Next Page IconTo Next Page
To Previous Page IconTo Previous Page
To Previous Page IconTo Previous Page
Loading...

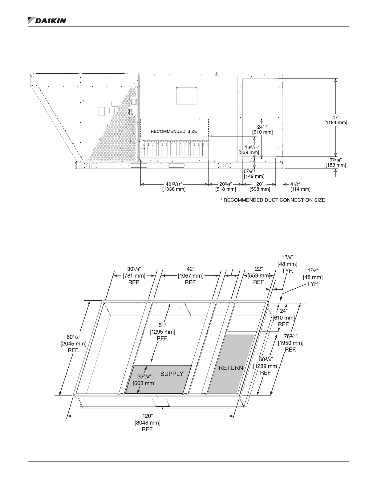
www.DaikinApplied.com 29 IM 972-2 • MAVERICK I ROOFTOP SYSTEMS
Horizontal Duct Dimensions
Figure 25: MPS 015B – 025B Horizontal Duct Dimensions
Curb Dimensions
Figure 26: MPS 015B – 025 Curb Dimensions
SUPPLY DUCT
RETURN
DUCT

Table of Contents

Related product manuals