EasyManua.ls Logo

Daikin ZUWV - Page 13

Daikin ZUWV
54 pages
Print Icon
To Next Page IconTo Next Page
To Next Page IconTo Next Page
To Previous Page IconTo Previous Page
To Previous Page IconTo Previous Page
Loading...
SINGLE SCREW CHILLERS IMM
Engineered for Flexibility and Performance 9
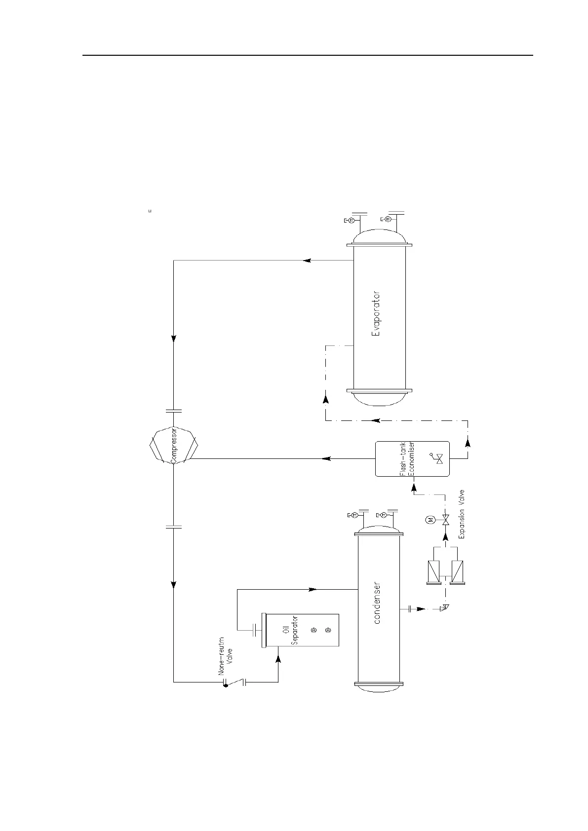
3.2 Working principles of single screw chiller with Flash-tank Economizer
1. Low temp/pressure refrigerant gas enters the compressor. After compression, the gas will be
discharged into oil separator in high temp/pressure;
2. Oil is separated from refrigerant in oil separator. The former goes back to compressor and the
later goes to condenser;
3. Refrigerant gas is condensed to high pressure liquid and then goes through expansion valve to
the Flash-tank Economizer. Gas and liquid will be separated in the economizer and the former
goes back to compressor and the later goes to evaporator with low pressure and temperature;
4. Refrigerant liquid absorbs heat from AHUs in evaporator so that the chiller can provide lower
temperature water;
5. Refrigerant gas goes back to compressor for the next circulation.
Fig.3-2

Table of Contents

Related product manuals