EasyManua.ls Logo

Danfoss D9h - Page 103

Danfoss D9h
206 pages
Print Icon
To Next Page IconTo Next Page
To Next Page IconTo Next Page
To Previous Page IconTo Previous Page
To Previous Page IconTo Previous Page
Loading...
4.
5.
6.
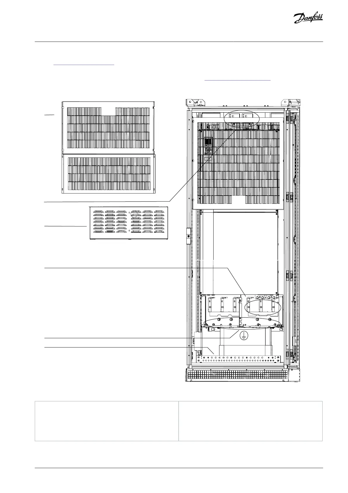
Connect the ground wire to the nearest grounding terminal in accordance with the grounding instructions provided in
5.8.6 Connecting to Ground.
Connect the 3-phase AC motor cables to terminals U (T1), V (T2), and W (T3).
Tighten the terminals in accordance with the specifications shown in 10.11 Fastener Torque Ratings.
Example
e30bu171.10
1
3
4
5
6
2
Illustration 58: Connection Points for Drive Module to Motor (E6h Model Shown)
Lower cover
DC terminals
Terminal cover
Motor terminals
Ground terminals on drive module
Grounding bar
AQ262139143212en-000301 / 130R0879 | 103Danfoss A/S © 2021.10
Electrical Installation
VLT® AutomationDrive FC 302
Operating Guide

Table of Contents

Related product manuals