EasyManua.ls Logo

Danfoss EXD 316 - Page 11

Danfoss EXD 316
16 pages
Print Icon
To Next Page IconTo Next Page
To Next Page IconTo Next Page
To Previous Page IconTo Previous Page
To Previous Page IconTo Previous Page
Loading...
AK-PC 572 Instructions RI8SR1ML © Danfoss 01/2019 11
FRANÇAIS
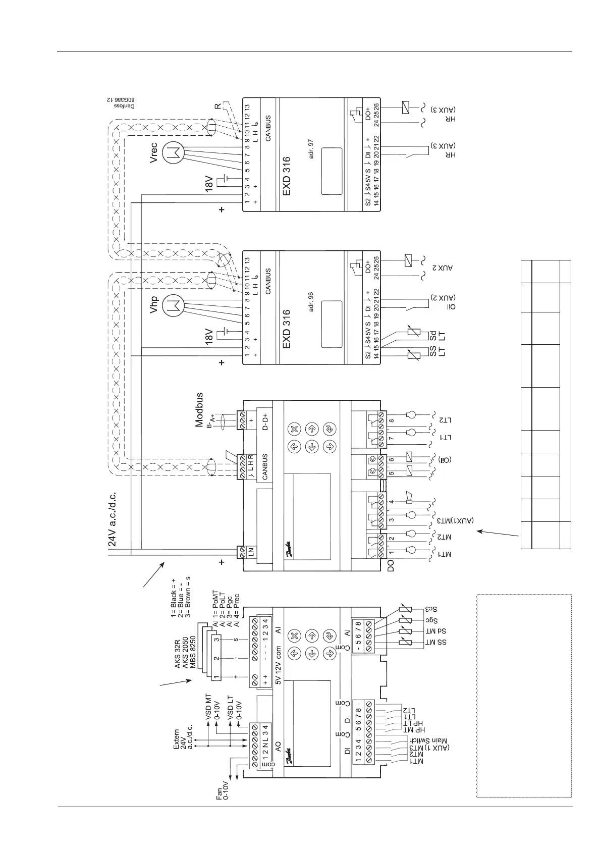
Connexion, niveau inférieurConnexion, niveau supérieur
Phénomènes de parasitage
Les câbles des sondes, des entrées DI, de la transmission de
données et l'affichage doivent être séparés de la haute
tension
(230 V) des câbles électriques:
- utiliser des chemins de câble séparés
- maintenir une distance d’au moins 10 cm entre les câbles
de haute tension et de signal
- Câbles supérieurs à 3 m à l'entrée DI doivent être évités
Raccordements
DO DO1 DO2 DO3 DO4 DO5 DO6 DO7 DO8 Σ 1-8
I Max. 10 A
(3,5)
10 A
(3,5)
6 A
(4)
6 A
(4)
0,5 A
min. 50 mA
Ioff < 1,5 mA
0,5 A
min. 50 mA
Ioff < 1,5 mA
6 A
(4)
6 A
(4)
32 A
U Tous 24 V ou tous 230 V c.a.
Avertissement
La tension d’alimenta-
tion de
AI ne peut pas partager
le signal avec
d’autres régulateurs.
Alimentation
séparée !
Avertissement !
+ doit être branché sur +
(L sur1 sur 1)
Important!
Patienter avant de brancher l'alimentation sur les
modules !
Pour régler les adresses 96 et 97, suivre la procédure
conseillée. Voir page 13.

Related product manuals