EasyManua.ls Logo

Danfoss VLT 5072 - Page 28

Danfoss VLT 5072
123 pages
Print Icon
To Next Page IconTo Next Page
To Next Page IconTo Next Page
To Previous Page IconTo Previous Page
To Previous Page IconTo Previous Page
Loading...
VL 5000 Crane
Installation
33: Load high (NO)
37: Hardware coast (NC)
39: Ground for analogue/digital outputs
42: Analogue output warning/alarm
45: Analogue output warning/alarm
46: Digital output
50: 10 V supply
53: Reference voltage
55: Common for anal. ref.
60: Reference current
68, 69: RS 485
01, 02: System brake signal
04, 05: Ready signal
73: Pulse signal A from encoder (0°)
74: Inverted pulse signal from encoder (0°)
75: Pulse signal B from encoder (90°)
76: Inverted pulse signal B from encoder (90°)
77: Zero pulse signal from encoder
78: Inverted zero pulse signal from encoder
49: 5 V supply to encoder
47: Common for encoder supply
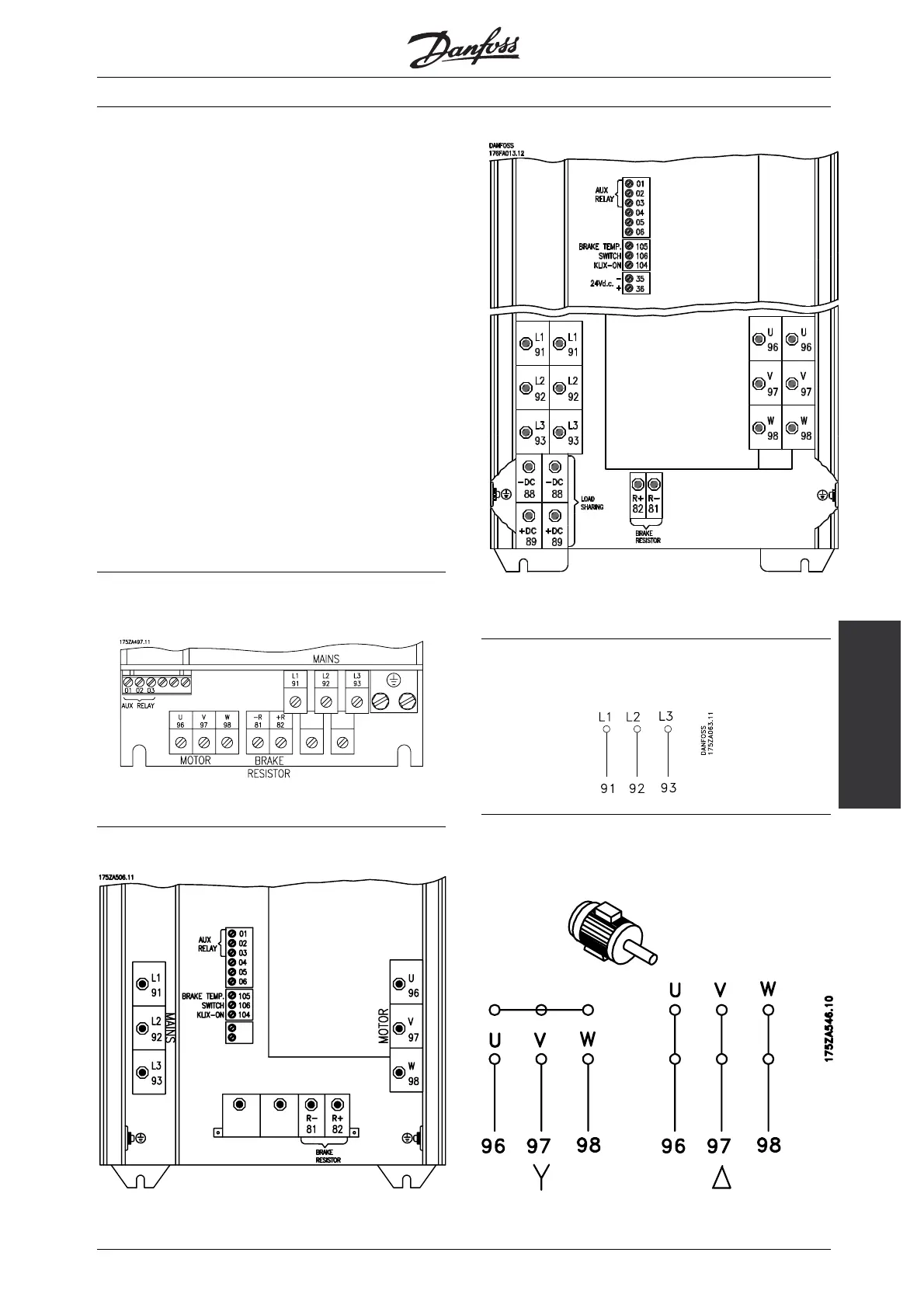
Electrical Installation, Power Cables
Compact IP 20 VLT Type 5042–5062
Compact IP 20/IP 00 VLT Types 5072-5102
Compact IP 00 VLT 5125-5250 400-500 V
Connection of Mains
Connect the three mains phases to terminals L
1
,L
2
,L
3
.
Connection of Motor
All types of 3-phased asynchronous standard motors
can be used with the VLT 5000 Crane.
MG.50.N4.02 - VLT is a registered Danfoss trademark
27

Other manuals for Danfoss VLT 5072

Related product manuals