EasyManua.ls Logo

Danfoss VLT HVAC Drive FC 102 - Page 27

Danfoss VLT HVAC Drive FC 102
140 pages
Print Icon
To Next Page IconTo Next Page
To Next Page IconTo Next Page
To Previous Page IconTo Previous Page
To Previous Page IconTo Previous Page
Loading...
S1 F1
F1
DC ‘-’
DC ‘+’
1739.1
805.0
765.0
1694.1
1654.1
710.0
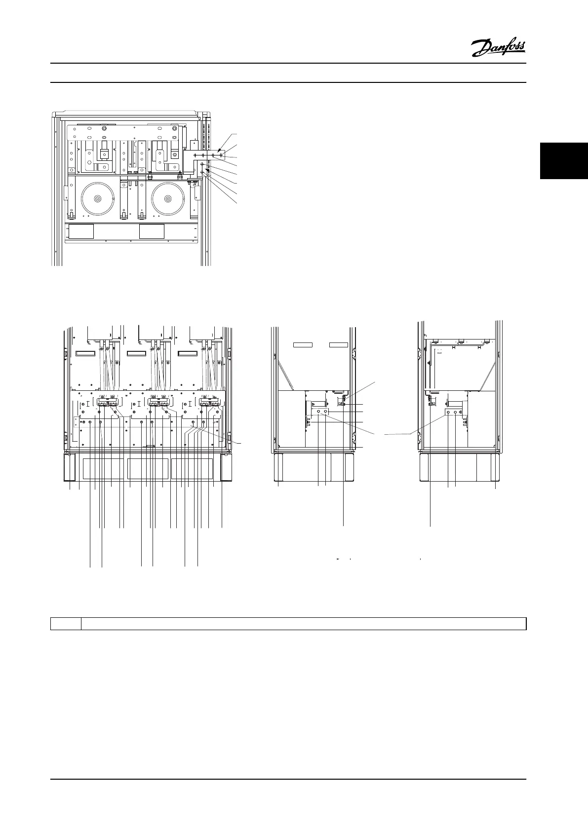
130BB377.10
Figure 3.25 Terminal Locations - Regen Terminals - F1 and F3
Terminal locations - enclosure types F2 and F4
287.4 [11.32]
0.0 [0.00]
339.4 [13.36]
253.1 [9.96]
0.0 [0.00]
287.4 [11.32]
0.0 [0.00]
339.4 [13.36]
465.6 [18.33]
465.6 [18.33]
308.3 [12.14]
180.3 [7.10]
210.1 [8.27]
0.0 [0.00]
66.4 [2.61]
181.4 [7.14]
296.4 [11.67]
431.0 [16.97]
546.0 [21.50]
661.0 [26.03]
795.7 [31.33]
910.7 [35.85]
1025.7 [40.38]
246.1 [9.69]
294.1 [11.58]
330.1 [13.00]
574.7 [22.63]
610.7 [24.04]
658.7 [25.93]
694.7 [27.35]
939.4 [36.98]
975.4 [38.40]
1023.4 [40.29]
1059.4 [41.71]
144.3
[5.68]
219.3
[8.63]
512.3
[20.17]
587.3
[23.12]
880.3
[34.66]
955.3
[37.61]
1
130BA850.12
FASTENER TORQUE: MIO 19 Nm (14 FT -LB)
U/T1 96 V/T2 97 W/T3 98
FASTENER TORQUE: MIO 19 Nm (14 FT -LB)
U/T1 96 V/T2 97 W/T3 98
FASTENER TORQUE: MIO 19 Nm (14 FT -LB)
U/T1 96 V/T2 97 W/T3 98
2
3
1 Ground bar
Figure 3.26 Terminal Locations - Inverter Cabinet - F2 and F4 (Front, Left and Right Side View). The Connector Plate is 42 mm (1.65
in) below .0 level.
Mechanical Installation Instruction Manual
MG11F522 Danfoss A/S © 08/2014 All rights reserved. 25
3 3

Table of Contents

Other manuals for Danfoss VLT HVAC Drive FC 102

Related product manuals