EasyManua.ls Logo

Danfoss VLT HVAC Drive FC 102 - Page 28

Danfoss VLT HVAC Drive FC 102
140 pages
Print Icon
To Next Page IconTo Next Page
To Next Page IconTo Next Page
To Previous Page IconTo Previous Page
To Previous Page IconTo Previous Page
Loading...
S1 S2
S2
F1
F1
S2F1
DC ‘-’
DC ‘+’
1739.1
1203.2
1163.2
1694.1
1654.1
1098.1
130BB378.10
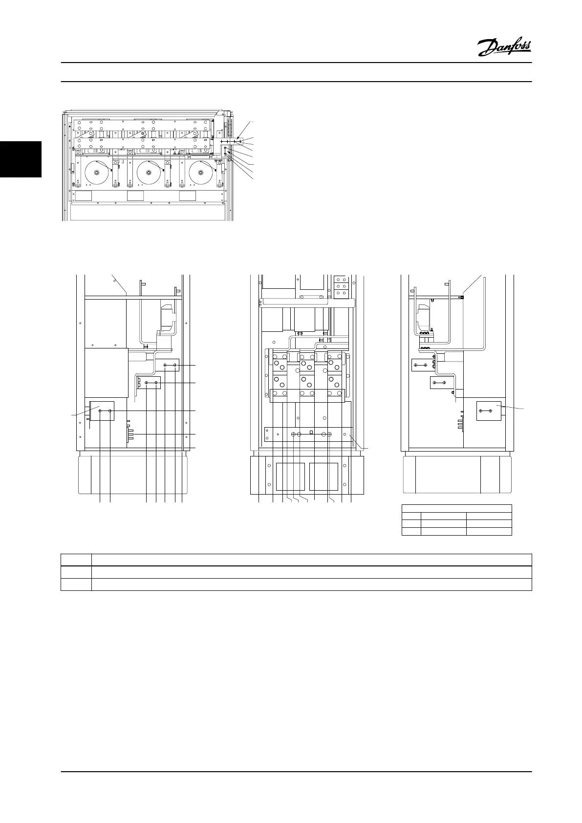
Figure 3.27 Terminal Locations - Regen Terminals - F2 and F4
Terminal locations - rectier (F1, F2, F3 and F4)
74.6 [2.9]
0.0 [0.0]
125.8 [4.95]
218.6 [8.61]
293.6 [11.56]
362.6 [14.28]
437.6 [17.23]
149.6 [5.89]
486.6 [19.16]
183.4 [7.22]
373.4 [14.70]
0.0 [0.00]
70.4 [2.77]
193.9 [7.64]
343.1 [13.51]
38.1 [1.50]
0.0 [0.00]
90.1 [3.55]
136.6 [5.38]
188.6 [7.42]
B
A
435.5 [17.15]
LOAD SHARE LOCATION
DIM F1/F2 F3/F4
A 380.5 [14.98] 29.4 [1.16]
B 432.5 [17.03] 81.4 [3.20]
6
5
4
130BA848.12
CH22 CH22
R/L1 91 S/L2 92
FASTENER TORQUE: M8 9.6 Nm (7 FT-LB)
T/L3 93
FASTENER TORQUE: M10 19 Nm (14 FT-LB)
FASTENER TORQUE: M10 19 Nm (14 FT-LB)
DC 89
FASTENER TORQUE: M10 19 Nm (14 FT-LB)
DC 89
CH22 CH22 CH22 CH22
CTI25MB CTI25MB
AUXAUXAUXAUXAUX
3
2
1
1 Load Share Terminal (-)
2 Ground Bar
3 Load Share Terminal (+)
Figure 3.28 Terminal Locations - Rectier (Left Side, Front and Right Side View). The Connector Plate is 42 mm (1.65 in) below .0
level.
Mechanical Installation
VLT
®
HVAC Drive FC 102
26 Danfoss A/S © 08/2014 All rights reserved. MG11F522
33

Table of Contents

Other manuals for Danfoss VLT HVAC Drive FC 102

Related product manuals