EasyManua.ls Logo

Dell PowerEdge R210 II - 4 Mechanical; 4.1 Chassis Description

Dell PowerEdge R210 II
57 pages
To Next Page IconTo Next Page
To Next Page IconTo Next Page
To Previous Page IconTo Previous Page
To Previous Page IconTo Previous Page
Loading...
Dell
13
PowerEdge R210 II Technical Guide
4 Mechanical
4.1 Chassis Description
The PowerEdge R210 II is a 1U rack-mount design that supports the following features:
Two cabled 3.5‖ drive bays for SATA or SAS hard drives or four 2.5‖ drive bays for SAS or SSD
drives (available Q2 2011)
Dual Gigabit LAN on motherboard (LOM)
Four DIMM slots
TPM security feature
One riser card for optional PCIe expansion card
Optional iDRAC6 Enterprise and iDRAC6 Express card mounted on planar (without PCI slot
occupied)
Support for 11G slim static and slim sliding rails.
Single non-redundant power supply
Diagnostic LED panel
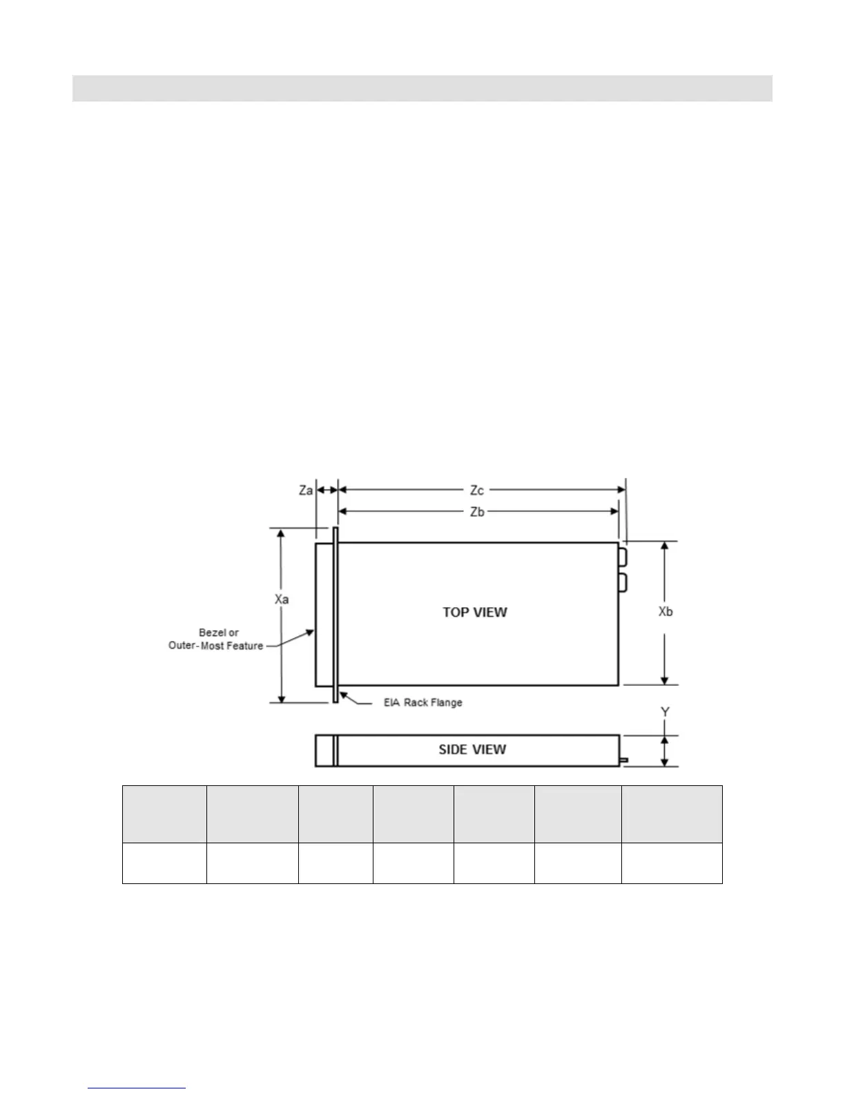
4.2 Dimensions and Weight
Figure 1 details the dimensions and weight for the PowerEdge R210 II.
Xa
Xb
Y
Za
(With
Bezel)
Zb*
Zc
Max Weight
482.6mm
434mm
42.4mm
35mm
390.7mm
394.3mm
8.05 kg
(17.76 lbs)
*Zb measures to the nominal rear wall external surface where the motherboard I/O connectors reside.
Figure 1. Chassis Dimensions

Table of Contents

Other manuals for Dell PowerEdge R210 II

Related product manuals