EasyManua.ls Logo

Delta Elektronika SM 3000 Series - Potentiometers; Cooling; Dimensions

Delta Elektronika SM 3000 Series
20 pages
Print Icon
To Next Page IconTo Next Page
To Next Page IconTo Next Page
To Previous Page IconTo Previous Page
To Previous Page IconTo Previous Page
Loading...
SM3000 DELTA ELEKTRONIKA BV
1991, rev. May 2008 DESCRIPTIONS Page 3 - 7
When the OVP sta tus output is used as an in dication for ac cidental in ter-
ruption of leads, a de fect in the power supply etc., it is rec ommended to set
the limit well above the working out put voltage to avoid ac cidental lim iting.
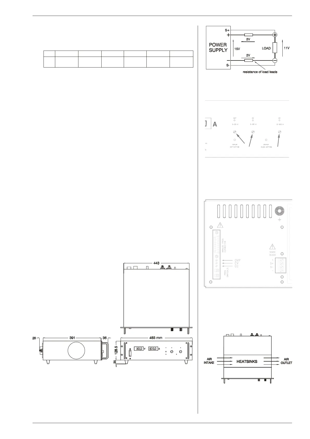
The rec om mended OVP set voltages can be read from the following ta ble:
SM 15-200 D SM 30-100 D SM 45-70 D SM 70-45 D SM 120-25 D SM 300-10 D
Vovp
set Vout + 2 V Vout + 3 V Vout + 5 V Vout + 5 V Vout + 10 V Vout + 25 V
Ex am ple: For a SM30-100D set at 24 V out put voltage it is recommended to
set the OVP on 24 + 3 = 27 V.
31)
PO TEN TI OM E TERS
° Stan dard: - CV and CC po tentiometers with knobs at front panel,
OVP po ten ti om e ter with screw driver ad just ment at
the front panel.
° Op tion P001: - Screwdriver ad justment for CV, CC and OVP at the
front panel (see fig. 3 - 25).
° Op tion P002: - Screwdriver ad justment for CV, CC and OVP at the
rear panel (no po tentiometers at front panel),
(see fig. 3 - 26).
32)
COOLING
A low noise blower cools the unit. The speed of the fan de pends on the tem-
per a ture of the in ter nal heatsink. At room temperature and full load the fan
will run at a very low speed. The fan does not op erate on no load. Normally
at 50 °C am bient and full load the fan will not work at full speed. Since the
fan is over-rated it will still have enough ca pacity to cool the unit when dust
partially ob structs the fins of the heatsinks.
A spe cial fea ture is that the fan blows through a tun nel where the heatsinks
are sit uated, the del icate con trol circuitry is sep arated and will not be in the
airflow path (see fig. 3 - 27).
Because the air en ters at the left and ex its at the right side it is pos sible to
stack the power sup plies, no distance be tween the units is re quired. Only
the ven tilation open ings at the left and right side should be free.
For long life the temperature of the air en tering on the left side, should be
be low 35 °C un der nor mal con ditions. Un der ex treme conditions it should
be be low 50 °C.
Note: The con trol circuit makes the fan start in a pul sating mode, during
which pe riod it normally pro duces a high pitched sound. This is nor mal.
33)
DI MEN SIONS
fig. 3 - 24
Remote sens ing, voltage drop in load
leads sub tracts from max. output
fig. 3 - 25
Screwdriver ad justment at front panel
fig. 3 - 26
Screwdriver ad justment at rear panel
fig. 3 - 27
The fan blows through a tun nel,
where the heatsinks are situated

Related product manuals