EasyManua.ls Logo

Delta ASD-A2-0721 Series - Page 633

Delta ASD-A2-0721 Series
721 pages
Print Icon
To Next Page IconTo Next Page
To Next Page IconTo Next Page
To Previous Page IconTo Previous Page
To Previous Page IconTo Previous Page
Loading...
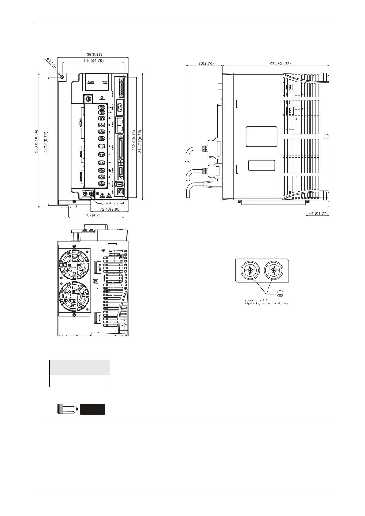
ASDA-A2 Chapter 11 Specifications
11-36 Revision February, 2017
ASD-A2-7523 (7.5 kW)
Weight
5.9 (13)
NOTE
1) Dimensions are in millimeters (inches); Weights are in kilograms (kg) and (pounds (lbs)).
2) Dimensions and weights of the servo drive may be revised without prior notice.

Table of Contents

Other manuals for Delta ASD-A2-0721 Series

Related product manuals