EasyManua.ls Logo

Delta ASD-A2-1021 Series

Delta ASD-A2-1021 Series
12 pages
Go to English
To Previous Page IconTo Previous Page
To Previous Page IconTo Previous Page
Loading...
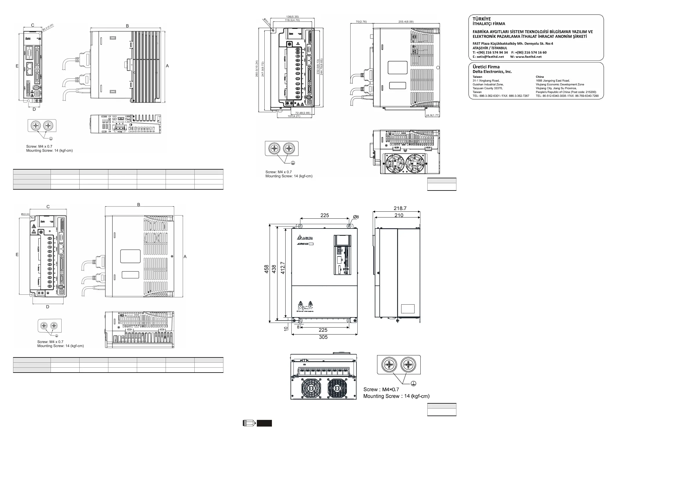
Servo Sürücü Ölçüleri
100W ~ 3kW modeller
Power A B C D E Weight
100W ~ 400W 173 (6.81) 170 (6.69) 45 (1.77) 27.5 (1.08) 163 (6.42) 1.5 (3.3)
750W ~ 1.5kW 173 (6.81) 180 (7.09) 65 (2.56) 47 (1.83) 163 (6.42) 2.0 (4.4)
2kW ~ 3kW 216 (8.50) 203 (7.99) 82 (3.23) 62 (2.44) 203 (7.99) 2.89 (6.36)
4.5W ~ 5.5kW modeller
Power A B C D E Weight
4.5kW 245 (9.65) 206 (8.11) 110 (4.33) 91 (3.58) 230 (9.06) 3.0 (6.6)
5.5kW 245 (9.65) 206 (8.11) 123 (4.84) 107 (4.21) 230 (9.06) 5.5 (12.1)
7.5kW modeller
Weight
7.516.5
11~15kW modeller
Weight
2044.0
NOTE
1) Ölçüler milimetre ve (inch).
2) Ağırlıklar kilogram ve (pounds).
3) Gerçek görüntüsü için, satın alınan ürüne bakınız.

Other manuals for Delta ASD-A2-1021 Series

Related product manuals