EasyManua.ls Logo

Delta ASD-A2-2043 Series

Delta ASD-A2-2043 Series
11 pages
Go to English
To Previous Page IconTo Previous Page
To Previous Page IconTo Previous Page
Loading...
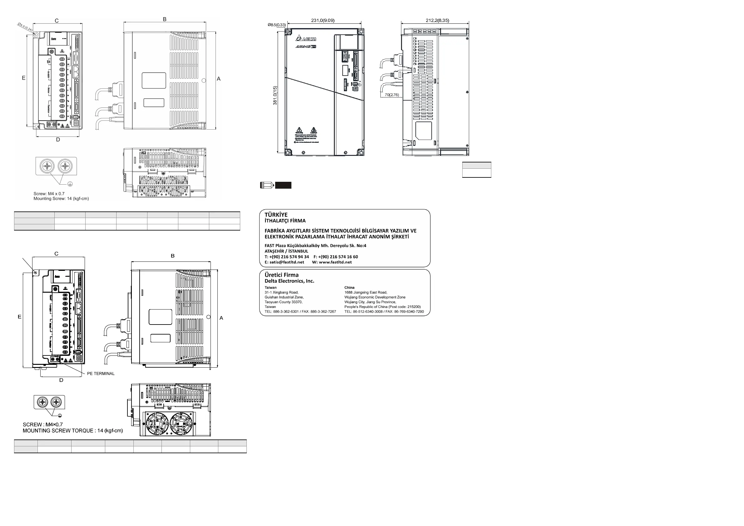
2kW ~ 5.5kW modeller
Power A B C D E Ağırlık
750W ~ 1.5kW
216 (8.50)
203 (7.99)
82 (3.23) 62 (2.44) 203 (7.99)
2.89 (6.36)
2kW ~ 5.5kW
245 (9.65)
205.4 (8.11)
123 (4.88)
107 (4.21)
230 (9.06)
5.5 (12.1)
7.5kW modeller
Ø
6
(0
.
2
4)
Power
A B C D E F Ağırlık
7.5kW
254.210.01
205.5(8.09)
136(5.35)
107(4.21)
247(9.72)
232(9.13)
5.512.1
11kW,15kW modeller
Ağırlık
8.518.7
NOTE
1) Ölçüler milimetre ve (inch).
2) Ağırlıklar kilogram ve (pound).
3) Gerçek görünüm için lütfen satın aldığınız ürünü inceleyiniz.
4) Bu bilgi dökümanında belirtilen aktüel ölçülen değerler metrik birimdir. İngiliz birim sistemi (imperial unit)
değerleri sadece referans içindir. Hassas ölçüm için lütfen metrik birim kullanın.

Other manuals for Delta ASD-A2-2043 Series

Related product manuals