EasyManua.ls Logo

Delta SOLIVIA 2.5 EU G3 - Onderhoud; Montage

Delta SOLIVIA 2.5 EU G3
392 pages
Print Icon
To Next Page IconTo Next Page
To Next Page IconTo Next Page
To Previous Page IconTo Previous Page
To Previous Page IconTo Previous Page
Loading...
Handleiding SOLIVIA 2.5 EU G3
313
NEDERLANDSE
Handleiding SOLIVIA 2.5 EU G3
Handleiding SOLIVIA 2.5 EU G3
319.5
150
320
200
6.5
12
Ø
12.5
90
38
12
410 ± 0.5
6.3 Onderhoud
Let er tijdens de hele bedrijfsduur op dat de zonne-energieomvormer niet wordt bedekt. Bovendien
moet de behuizing regelmatig worden afgestoft en schoongemaakt.
In het apparaat zelf zitten onderhoudsvrije componenten. U mag het apparaat in geen geval ope-
nen.
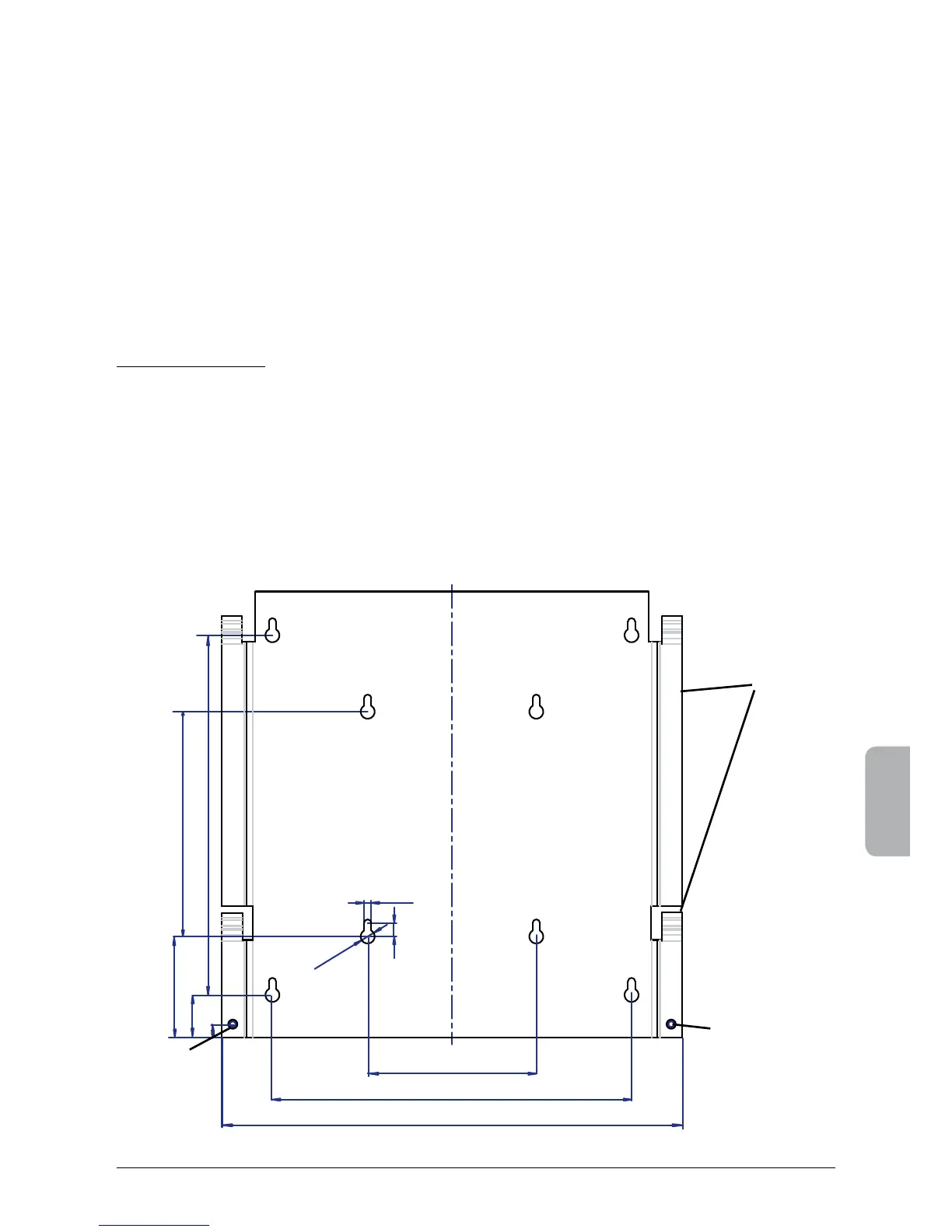
6.4 Montage
Gebruik de meegeleverde montageplaat om de inverter probleemloos te installeren. Voor beves-
tiging aan de wand moeten passende schroeven worden gebruikt. Monteer de wandhouder op
zo’n manier dat de omvormer er later alleen nog maar ingehangen hoeft te worden. Schroef het
apparaat daarna goed vast.
Montagehandleiding
1. Maak de montageplaat met passende schroeven (max. Ø 6 mm) vast in minstens vier
van de acht boringen om de wandhouder te bevestigen. Om de plaats van de boorga-
ten te markeren, kunt u de wandhouder als boorsjabloon gebruiken.
2. De omvormer weegt 21,5 kg. Til hem daarom met minstens twee personen uit de doos.
3. Hang de omvormer met minstens twee personen in de wandhouder.
4. Schroef de meegeleverde borgmoeren en onderlegplaatjes op de schroefdraadbouten
om het apparaat te borgen.
5. Controleer of de zonne-energieomvormer goed vastzit.
Wand-
houder
Schroefdraad-
bouten om het
apparaat te
borgen
Schroefdraad-
bouten om het
apparaat te
borgen

Table of Contents

Related product manuals