EasyManua.ls Logo

Dimplex LBW 300 - Circuit Diagram

Dimplex LBW 300
24 pages
Print Icon
To Next Page IconTo Next Page
To Next Page IconTo Next Page
To Previous Page IconTo Previous Page
To Previous Page IconTo Previous Page
Loading...
19
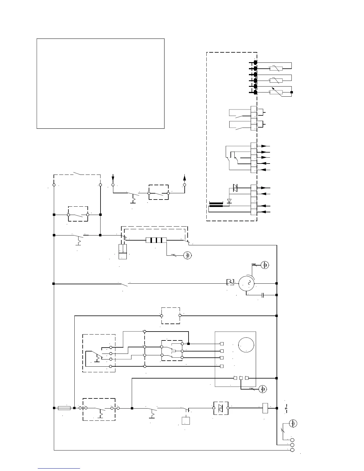
11.4 Circuit Diagram
LBW300 / LBW300LW
J1
14
14
11
K1
Ventilator
M2
A1
K1
A2
S1
1
2
M1
+48V DC
KL1
day
L
night
PE
N
party
M
M
P
1
A
C
F3
C1
X1-1
L/N/PE ~ 230VAC - 50Hz
X1-2
21bar
F2
P >
2
1
Wärmepumpe
21
22
E1
11
T >
B1/
F4
STB
TR
+65°C
+99°C
(+30 - +85°C )
12
S3
1
2
2
1
S2
Elektro - Heizstab
11
6543
X6
S5
S4
X6-1
X6-2
III
II
I
Fernbedienung
Fernbedienung
minus
KL2
N1
J1-4
J1-5
N1
J1-L
J1-N
N1
N1
J1-13
J1-14
N1
J1-11
J1-12
F1
Legende
B1 Regelthermostat-el. Heizung
C1 Anlaufkondensator Verdichter
E1 Elektro-Heizstab
F1 Steuersicherung
F2 Pressostat Hochdruck
F3 Thermokontakt Verdichter
F4 Sicherheitsbegrenzer-Thermostat el.Heizstab
K1 Relais Verdichter
K2 Relais auf N1
K3 Relais auf N1
K4 Relais auf N1
M1 Verdichter
M2 Ventilator mit Netzteil
N1 Regelplatine
R1 NTC-Fühler Speichertemperatur
R2 NTC-Fühler Ablufttemperatur
R3 Potentiometer Sollwert-Warmwasser
S1 Schalter Wärmepumpe
S2 Schalter el.Heizung
S3 Schalter externe Pumpe
S4 Schalter Wärmepumpe EIN/AUS über Fernbedienung
S5 Schalter Drehzahlumschaltung-Venti über Fernbedienung
X1 Klemmenleiste: Netzanschluss; externe Komponenten
J1-10 J1-2
J1-6 J1-7
-9
X1
3
4
5 6
L PEN
X1
Heizung "EIN-AUS" extern
Ansteuerung für externe Pumpe
1,25A Tr
250V
X1
7
8
X1
9
10
L N 6 7 2 9 103 4 5
11 12 13 14
X4
Platine N1
Sollwert
Speichertemp.
Ablufttemp.
R1 R2R3
Ansteuerung für externe Pumpe ect.
Heizung "EIN/AUS" von extern
B1 Regulating thermostat, electr. Heating
C1 Starting capacitor, compressor
C2 Operating capacitor, fan
E1 El. immersion heater
F1 Control-circuit fuse
F2 HP pressostat
F3 Thermal contact, compressor
F4 Safety limiter thermostat, el. heating element
K1 Relay, compressor
K2 Relay on N1
K3 Relay on N1
K4 Relay on N1
N1 Controller board
R1 NTC sensor, storage tank temperature
R2 NTC sensor, exhaust air temperature
R3 Potentiometer, hot water setpoint
S1 Switch, heat pump
S2 Switch, el. heating
S3 Switch, external pump
S4 Switch, heat pump ON/OFF via remote control
S5 Switch, fan speed switchover via remote control
X1 Terminal strip: mains connection; external
components
Exhaust air temp.
Storage tank temp.
Setpoint
Heating “ON/OFF”, external
Control of external pump
Board N1
Control of external pump Heatin
g
“ON/OFF”
,
external
Electric heating element Heat pump Fan
Remote control
Remote control

Related product manuals