EasyManua.ls Logo

DINGLI S03-E - Page 34

DINGLI S03-E
49 pages
Print Icon
To Next Page IconTo Next Page
To Next Page IconTo Next Page
To Previous Page IconTo Previous Page
To Previous Page IconTo Previous Page
Loading...
OPERATOR’S MANUAL with Maintenance Information
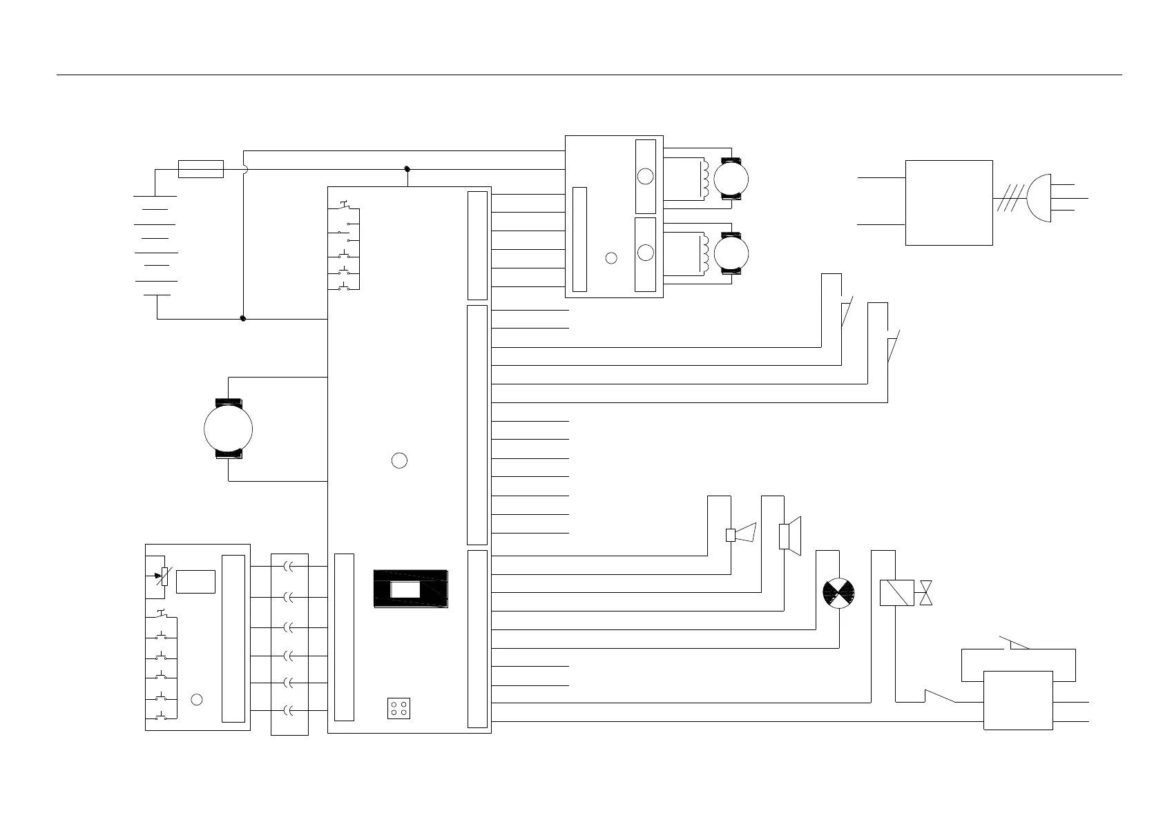
Schematic
32
Electrical Schematic
10
3
12
5
13
6
14
7
20
10
19
9
18
8
17
7
15
5
6
5
4
3
2
1
B+
B-
P M +
P M -
1
2
5
6
9
10
1
2
3
4
5
6
PM
E
FU
B-
B+
1
2
3
4
5
6
M+
b-
M-
M2
M1
K A (In th e c h a rg e r)
HI FM
YV
2
5
3
6
4
1
b+
M+
b-
M-
b+
R
L
R E D
B LA C K
Y E L L O W
W H IT E
B LU E
Y E L L O W
U S B
4
11
HR
C O N T R O L
C
O
N
T
R
O
L
2
C
O
N
T
R
O
L
3
B+
B-
1
B+
B-
L
PE
N
L C D
L E D
4
11
14
KTF
2 Q S L o w e r lim ite d S w itc h
K T F
B+
B-
D ow n V alv e
H orn
B uz z e r
A la rm
B ea c o n
2 Q S L ow e r lim ite d S w itc h
B ra k e
B ra k e
R ig h t D riv e M o to r
L ift D riv e M o to r
C ha rg e r
P u m p
M o to r
B att e ry
K ey S w itc h
M o d e B u tto n
U P B u tto n
D ow n B otto n
P la tfo rm C o n tro l
G ro u n d C o n tr o l
E m erg e nc y S to p
D riv e
M o u ld e
D riv e /U p D ow n
s p e e d c o ntro l
H orn B u tto n
D riv e M o de
L e ft /D o w n M o d e
H ig h S pe e d M o d e
L o w e r S p e ed M o de
E m erg e nc y S to p
D riv e C o n tro l M o u ld e
J o y s tic k H a n d le
O p e r a tio n
D ata C o n n ec to r

Related product manuals