EasyManua.ls Logo

Dormakaba 9300 - Single Door F9300 MLR Exit Device x PS610 RF Power Supply x ES105 Power Transfer x Input Device

Dormakaba 9300
10 pages
Print Icon
To Next Page IconTo Next Page
To Next Page IconTo Next Page
To Previous Page IconTo Previous Page
To Previous Page IconTo Previous Page
Loading...
dormakaba 9000 Series MLR Installation Instructions
95071186 01-2021Exit Device
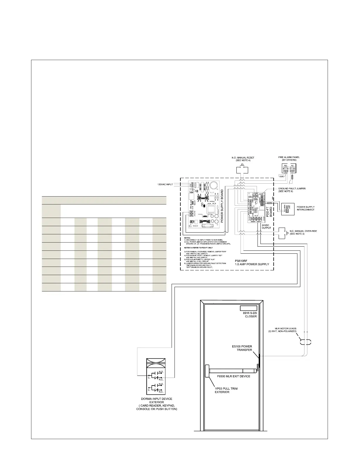
5
MLR x Power Supply x Power Transfer x Input Device
. Single Door:
F MLR Exit Device x PSRF Power Supply x ES Power Transfer x
Input Device
Operation: Door is locked and secured. Entrance by presenting valid credentials at exterior input device which triggers the PSRF
Power Supply to energizes motor of F MLR Exit Device retracting latch botl on  MLR Exit Device for time set on input device
N.C. relay output. Entrance is also possible by key in rim cylinder of YP trim which retracts latch bolt of F MTR Exit Device
by-passing motorized latch retraction. Egress is always possible by depressing touch bar of F MLR Exit Device.
Fire Alarm Activation: F MLR Exit Device is de-energized releasing latch bolt allowing positive latching when door is closed.
Immediate egress is possible by depressing touchbar of F MLR Exit Device.
NOTES:
. All Wiring and interface between EAC components and to fire alarm panel to be determined and supplied by others.
. PSRF Power Supply to be set for VDC output.
. PSRF Power Supply to be controlled by UL listed fire alarm panel.
. Input device N.C. relay output unlock time to be determined and set in field by others.
NOTE: This wiring diagram is provided to assist in interfacing
dormakaba products into the system described above.
Compatibility and functionality of components not supplied by
dormakaba are not guaranteed. Component failure resulting from
improper wiring is not covered by warranty. Refer to individual
device product information sheets and installation instructions
for wire guage sizes and additionalinformation.
Minimum Wire Guage Chart (AWG) for 24V AC/DC
Distance in Feet for 2 Conductors from Power
Source to Locking Device
AMPS 25 50 75 100 150 200 250 300
.25 18 18 18 18 18 18 18 18
.50 18 18 18 18 18 18 18 16
.75 18 18 18 18 18 16 16 14
1.00 18 18 18 18 16 16 14 14
1.50 18 18 18 16 16 14
2.00 18 18 16 16 14
2.50 18 18 16 14
3.00 18 16 14 14
Parts List:
 EA. - PSRF Power Supply, Input: VAC/ Hz, . Amps, Output: . Amps
@ VDC, regulated and filtered (dormakaba)
 EA. - F MLR Exit Device, . Amp @ VDC x YP Pull Trim (dormakaba)
 EA. - ES Power Transfer (dormakaba)
 EA. - Input device (dormakaba)
 EA. -  S-DS surface door closer (dormakaba)

Related product manuals