EasyManua.ls Logo

dosatron D 25 RE 2 - Assembling the DOSATRON; Assembly Components and Tool-Free Process; Water Supply Connection Method

Default Icon
29 pages
Print Icon
To Next Page IconTo Next Page
To Next Page IconTo Next Page
To Previous Page IconTo Previous Page
To Previous Page IconTo Previous Page
Loading...
©
DOSATRON INTERNATIONAL / 9
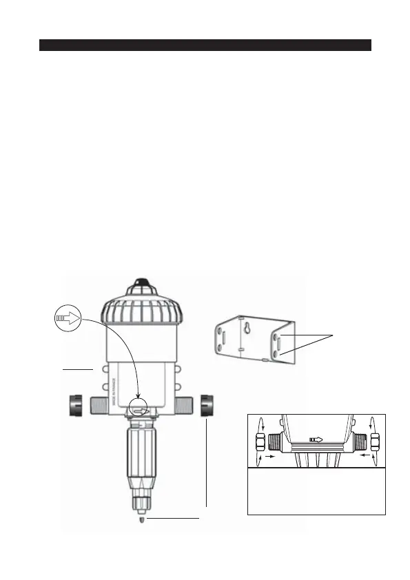
The DOSATRON is delivered with :
- a mounting bracket,
- a suction tube with a strainer.
The bracket enables the DOSATRON
to be fixed to a wall.
Snap the DOSATRON into the bracket
by fitting the two lugs on one side of
the body (Fig. 1-A) into the corres-
ponding holes in the bracket (Fig.
1-B), and springing the bracket arms
apart until the other 2 lugs click into
place.
Remove the plastic caps (Fig. 1/2-C)
which block the inlet and outlet of your
DOSATRON before connecting to the
water supply.
The DOSATRON can be connected
to the water supply by means of
Ø 20 x 27 (3/4”) bore flexible hose
and hose tail fittings with hose clips.
Make certain that water flows in the
same direction as the arrows on the
motor body.
ASSEMBLING THE DOSATRON
ASSEMBLY SHOULD BE CARRIED OUT WITHOUT THE USE
OF TOOLS
A
Fig. 1
C
B
w
a
t
e
r
o
w
Torque 20 N
.
m
thus 2kg
.
m
(Remember : 1 N
.
m = 0.1DaN.M)
RECOMMENDATIONS

Related product manuals