EasyManua.ls Logo

dosatron D 8 RE 2 - Conseil Dinstallation

dosatron D 8 RE 2
Print Icon
To Next Page IconTo Next Page
To Next Page IconTo Next Page
To Previous Page IconTo Previous Page
To Previous Page IconTo Previous Page
Loading...
©
DOSATRON INTERNATIONAL / 13
FR
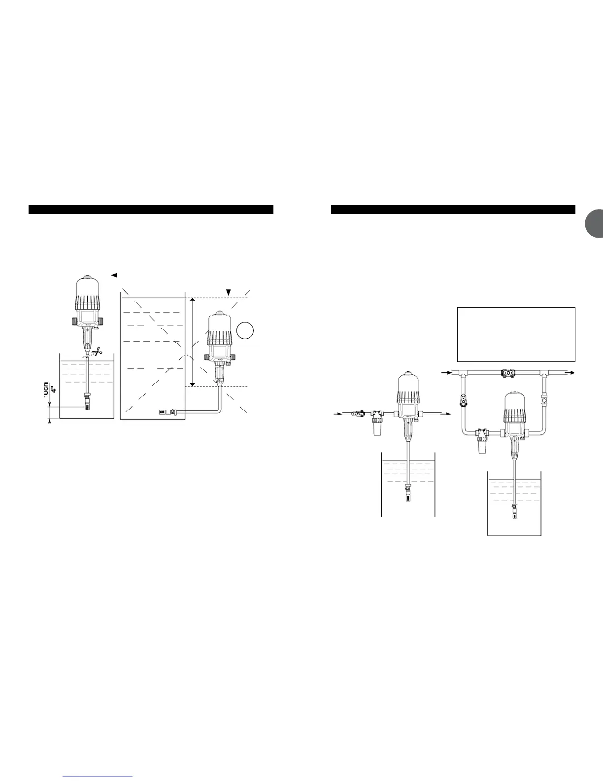
ATTENTION ! Laisser la crépine à 10 cm [4”] environ du fond du bac de
solution afin d’éviter d’aspirer les particules non solubles qui risquent
d’endommager le corps doseur.
- Ne pas poser la crépine sur le sol.
En aucun cas le niveau de la solution ne doit être au-dessus de
l’entrée d’eau dans le DOSATRON (afin d’éviter tout siphonnage)
(Fig. 3).
INSTALLATION DU DOSATRON (suite)
Fig. 2
Fig. 3
CE QUE VOUS DEVEZ FAIRE
CE QUE VOUS NE DEVEZ PAS FAIRE
NO !
©
DOSATRON INTERNATIONAL / 12
CONSEIL D’INSTALLATION
SURDEBIT (à titre indicatif)
Si votre DOSATRON claque plus de 40 coups, soit 20 cycles en 15 secondes,
vous êtes en limite de capacité de débit supérieur. Pour aller au-delà,
choisir un DOSATRON à capacité de débit d’eau supérieur.
Sur la canalisation d’eau, les
montages peuvent être faits en
ligne (Fig. 4), en by-pass conseillé
(Fig. 5).
Si votre débit est supérieur aux
limites du DOSATRON, voir §
SURDEBIT.
Afin de préserver la longévité du
DOSATRON, il est conseillé de monter
un filtre (ex. : 300 mesh - 60 microns
selon la qualité de votre eau) en amont
de celui-ci.
Cette précaution est indispensable
quand l’eau est chargée en impuretés ou
particules, surtout si l’eau provient d’un
forage.
Le filtre est conseillé et
nécessaire pour que la garantie
soit valable.
Le montage en by-pass permet
l’alimentation en eau claire de
l’installation sans faire fonctionner
le DOSATRON et permet le
démontage aisé de celui-ci.
Pour toute installation sur le
réseau d’eau potable,
respectez les normes et
réglementations en vigueur
dans le pays.
Fig. 4
Clapet
anti-
retour
Vanne
Vanne
Filtre
Filtre
Fig. 5

Table of Contents

Related product manuals