EasyManua.ls Logo

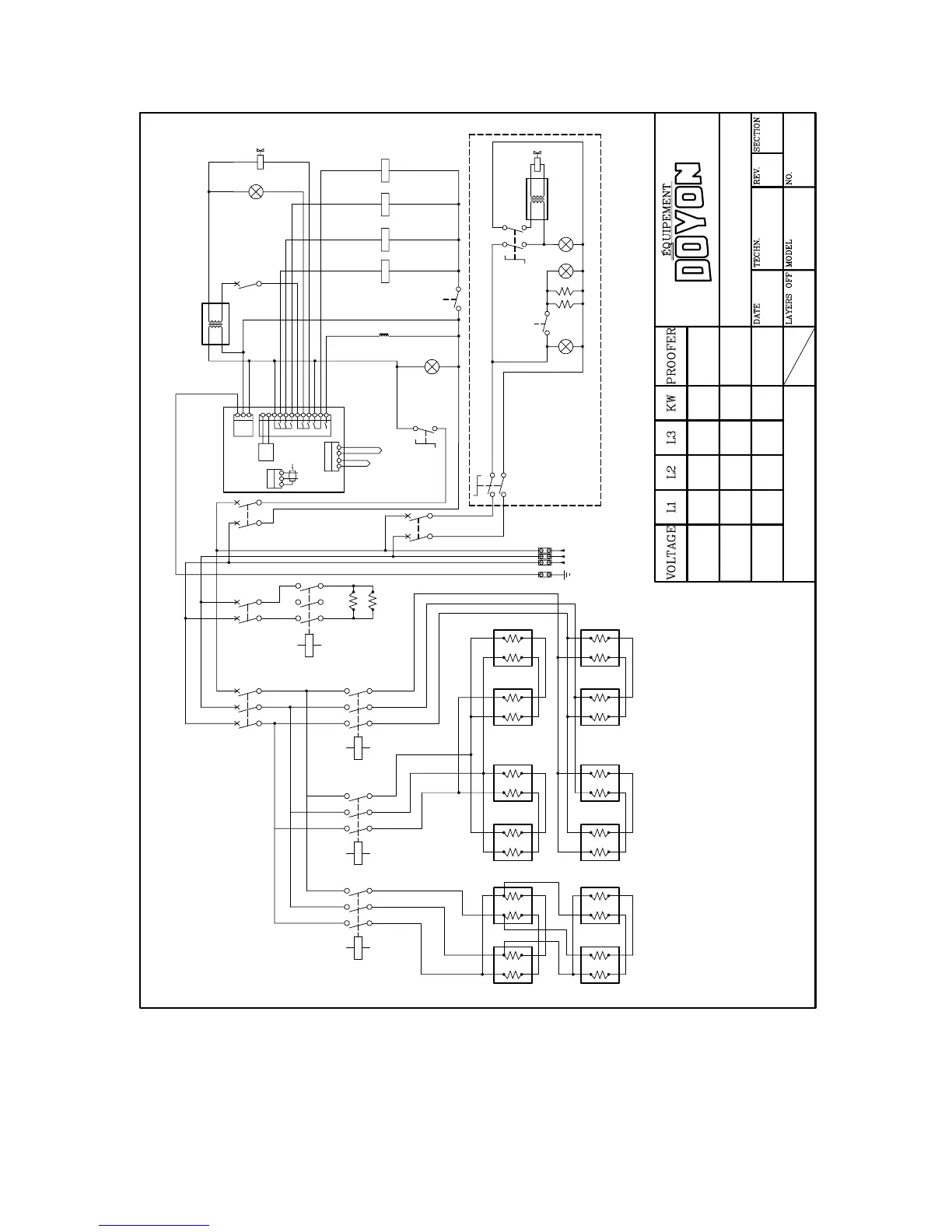
Doyon 1T - 1 T Proofer Electrical Schematic

Doyon 1T
52 pages
Print Icon
To Next Page IconTo Next Page
To Next Page IconTo Next Page
To Previous Page IconTo Previous Page
To Previous Page IconTo Previous Page
Loading...
G4
L1L2 L3
1
2
3
3
+
4
5
8
9
6
7
11
10
PAINEL INTEGRADO
7085
24V
1819 1716
SONDA
VAPOR
SONDA
FORNOS
+
+
15
14
13
MALHA
PARA
OUTROS
(CASA)
f1
220V
q1
g1
c4
A1
A2
VAPOR
c3 LAR
PORTAc1
TECTO
c2
A1
A2
d1
b2
VAPOR
c4
A1
A2
k2
b1
R1
R2
j1
j1
A1
A2
A1
A2
c3
A1
A2
LAR
c2
TECTO
A2
A1
c1
PORTA
A2
A1
j1
j1
R1
R2
R1
R2
R1
R2
j1
R1
R2
R1
R2
j1
R1
R2
j1
R2
R1
j1
j1
j1
R1
R2
R1
R2
R1
R2
j1
j1
R1
R2
b1
HIGH LIMIT
250VA
12
BUZZER
RESISTENCIAS
VAPORISADOR
k1
b4
12V
b3
d1
PROOFER
b3
HIGH LIMIT
STEAM
STEAM
10A
6A
220V
12V
220V
220 29A 29A 29A 10.3
1T ARTISAN STONE OVEN
8/04/05 M. FAUCHER 1
NONE
1T
OVEN / PROOFER
1T_OP_C2
1 / 1
208 27.5A 27.5A 27.5A 9.2
TOTAL POWER: 3 PH. 60 Hz
240 32A 32A 32A 12.3
1KW
1.1KW
1.3KW

Related product manuals