EasyManua.ls Logo

Dunkirk DXL-125 - Control Settings

Dunkirk DXL-125
32 pages
Print Icon
To Next Page IconTo Next Page
To Next Page IconTo Next Page
To Previous Page IconTo Previous Page
To Previous Page IconTo Previous Page
Loading...
22
CONTROL SETTINGS
Indirect Water Heater
When installing with indirect water heater, signal from
indirect must be separated from heating zone signals and
wired appropriately.
If you choose not to separate indirect signal from heating
zones, Economy Feature should be turned off to insure
boiler supplies adequate temperature to heat the indirect
tank.
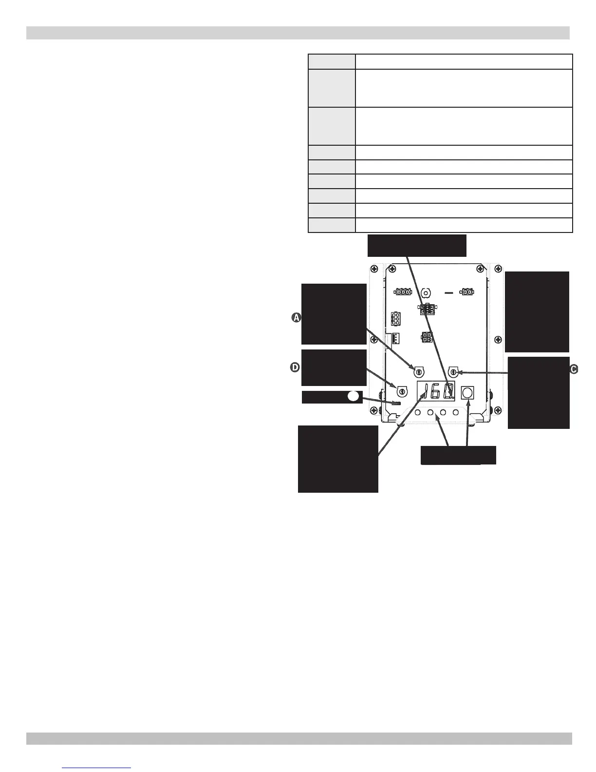
Control Setting
Settings can be checked using the TEST/SETTINGS Button.
See page 24 for details.
High Limit
The high limit is factory set at 190°F. To adjust, turn
HI TEMP dial A until desired setting is displayed.
(Setting range: 130°F - 220°F)
Low Limit
Low limit is designed to maintain temperature in boiler
suitable for domestic hot water. Low limit is factory set to
OFF. Prior to adjusting, remove the jumper (not equipped
on all units) B.
Then turn LO Temp dial C clockwise until desired
temperature is displayed. For Proper operation, low
temperature limit setting should be at least 10° below high
limit setting. For cold start operation, low limit must be
turned OFF. If low limit temperature cannot be set above
140°F, remove jumper B. (Setting range: OFF or 110°-
200°F).
Economy Feature
Economy Feature is factory set for 1 zone heating
system. To adjust, turn the ECONOMY dial D until the
number displayed equals the number of heating zones.
The Economy Feature conserves fuel by reducing boiler
temperature. If heating system is unable to supply needed
heat to the house, Economy dial should be turned to lower
setting (example: In a three zone house, turn dial to 2 or
1). Conversely, if boiler provides adequate heat, added
fuel savings can be achieved by selecting a higher setting
(example: 4 or 5). If heating and indirect water heater
signals were not separated when wiring control, Economy
Feature should be turned OFF to insure boiler supplies
adequate temperature to heat the indirect tank.
Decimal Point
(Indicates heat call)
High
Temperature
Limit Setting
(130°-220°F)
Factory 190°F
Economy Dial
(OFF or LO,
1,2,3,4,5,HI)
Jumper
B
Dynamic Display
Water Temperature
and Real Time
Verication
of Setting
Adjustments.
Differentials
are automatic
and will vary
based on
control settings
and boiler
temperature
Low
Temperature
Limit Setting
(OFF or 110°-
200°F) Factory
Off
Diagnostic LEDs
and Test Buttton
SETTING
OFF
Disables economy function. Will allow boiler to re
until hi-limit temp is reached and re-re with a 10°
subtractive differential.
LO
Provides lowest level of fuel savings. Use this set-
ting only if the house does not stay warm at higher
settings.
1
Recommended setting for single zone systems.
2
Recommended setting for Two zone systems.
3
Recommended setting for Three zone systems.
4
Recommended setting for Four zone systems.
5
Recommended setting for Five zone systems.
HI
Provides highest level of fuel savings.
Activation Thermal Pre-Purge (Optional)
Activation of this feature is not recommended for boiler
supplying domestic hot water.
Fuel Smart HydroStat has a Thermal Pre-Purge feature to
maximize efciency. When activated, control will purge
higher boiler temperatures down to 135°F at start of any
thermostat call and supply the latent energy in the boiler
to the heating zone that is calling. During the purge cycle,
the display will indicate Pur. If the heat is not sufcient to
satisfy the thermostat, control will energize burner. Feature
works with single and multi-zone heating systems utilizing
circulators or zone valves. No change in wiring is needed.
To Activate Thermal Pre-Purge
Push and hold the TEST/SETTINGS button for 20 seconds.
Display will read Pur On. To deactivate this feature, push
and hold button a second time for 20 seconds. Display will
read Pur OFF.
P/N 240009041, Rev. C [04/30/2017]

Related product manuals