EasyManua.ls Logo

DUROMAX MX4500E - Page 27

DUROMAX MX4500E
37 pages
Print Icon
To Next Page IconTo Next Page
To Next Page IconTo Next Page
To Previous Page IconTo Previous Page
To Previous Page IconTo Previous Page
Loading...
24
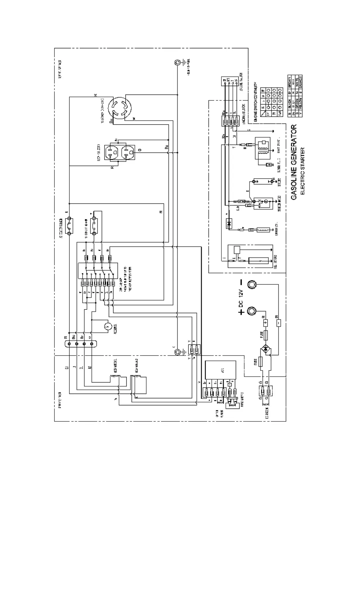
WIRING DIAGRAM (MX4500E)

Related product manuals