EasyManua.ls Logo

EAE EE-6603BWF - Annex 1, Floor Plan for Recessed Installation

EAE EE-6603BWF
40 pages
Print Icon
To Next Page IconTo Next Page
To Next Page IconTo Next Page
To Previous Page IconTo Previous Page
To Previous Page IconTo Previous Page
Loading...
Installation, Operation and Parts Manual
EE-6603BWF
21
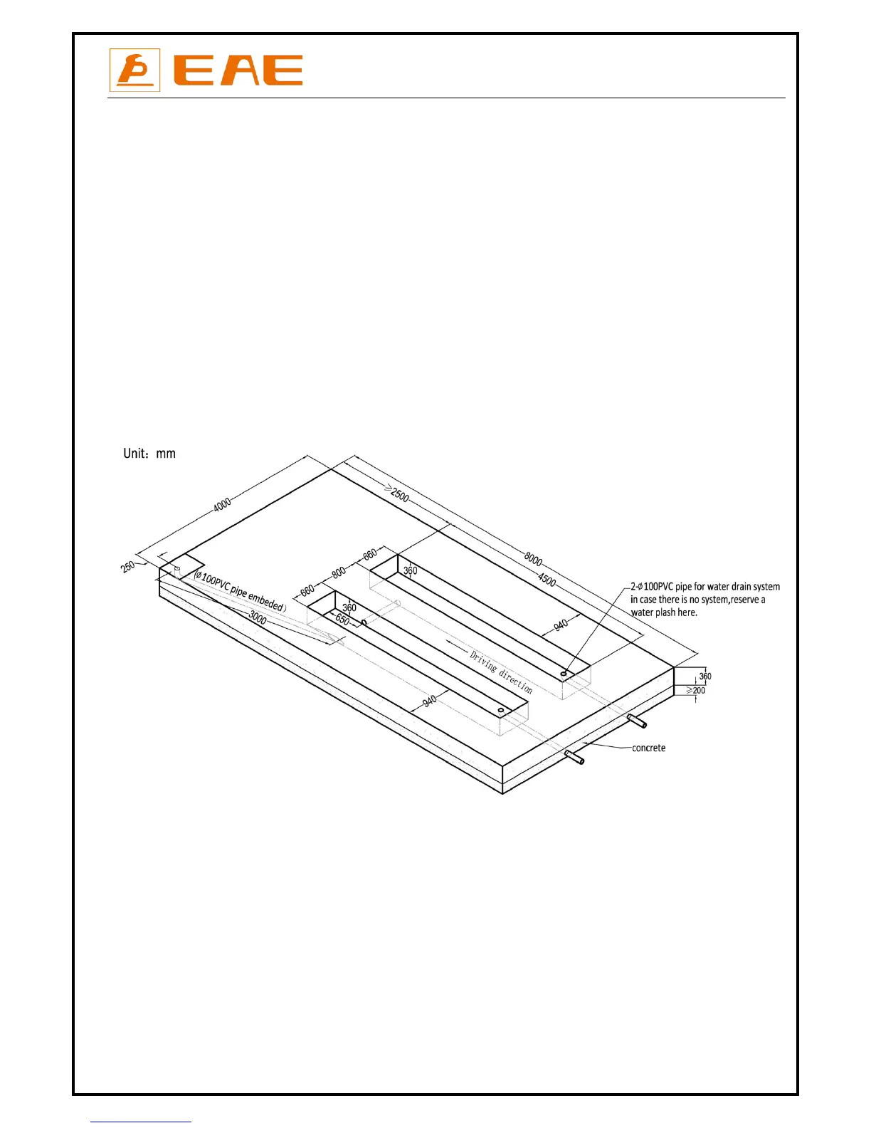
Annex 1, Floor plan for recessed installation
1. Indoor installation only. There must be a clearance of at least 1 meter between the lifting platform and fixed elements (e.g. wall) in all
lifting positions. There must also be sufficient space for driving vehicles on and off.
2. C20/25 concrete base with strength more than 3000psi. Concrete thickness of the pit base shall be more than 200mm and remove the
peel-offs in the bit. Concrete Surface: Horizontal and even (Gradients max. 0.5 %).
3. Embedded L40 angle iron around the pit for edging.
4. Newly built concrete ground must be older than 20days.
5. In case drain pipes are not applicable, it is necessary to reserve a water collection pit.
6. In mm.
Attention: Please refer to floor plan 42LC, 46LC, 48LC and 51LC in case rolling wheel free jacks need to be mounted.
42L:

Related product manuals