EasyManua.ls Logo

EAE EE-6603BWF - Annex 4, Pneumatic Connections and Parts List

EAE EE-6603BWF
40 pages
Print Icon
To Next Page IconTo Next Page
To Next Page IconTo Next Page
To Previous Page IconTo Previous Page
To Previous Page IconTo Previous Page
Loading...
Installation, Operation and Parts Manual
EE-6603BWF
35
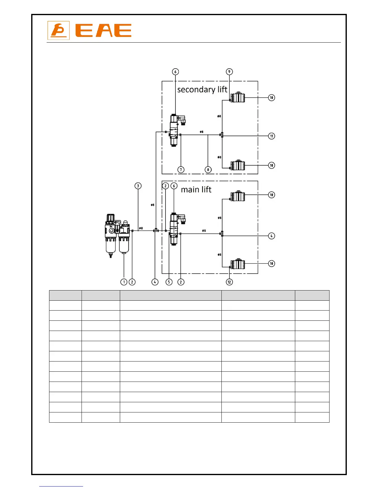
Annex 4, Pneumatic connections and parts list
Pos.
CODE
Name
Specification
Qty
1
321004006
AFC Air filter combination
AFC2000
1
2
310101015
Pneumatic connector
KLC8-02
5
3
123010201
Air hose
DE8
1
4
310103006
Three way pneumatic connector
KLE-8
2
5
310201003
Silencer
SLM01 R1/8 (M8)
2
6
310401001
Pneumatic directional valve
3V210-08DC24V
2
7
310101015
Straight pneumatic hose connector
KLC8-02
1
8
123010201
Pneumatic hose
DE8
2
9
310102024
Bending pneumatic connector
KLL8-01
2
10
310501001
Pneumatic cylinder
CQ2B32*20
4
11
310103006
Three way pneumatic connector
KLE-8
1
12
310101015
Straight pneumatic hose connector
KLC8-02
2

Related product manuals