EasyManua.ls Logo

Eagle 2000 B - Optional Scale

Eagle 2000 B
47 pages
Print Icon
To Next Page IconTo Next Page
To Next Page IconTo Next Page
To Previous Page IconTo Previous Page
To Previous Page IconTo Previous Page
Loading...
- 46 -
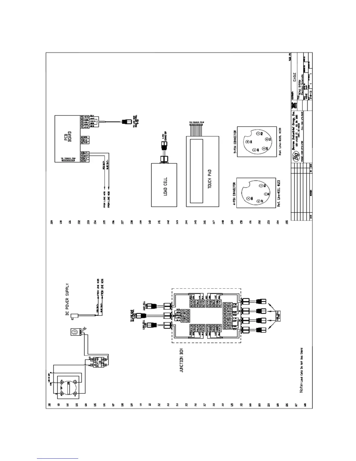
6.6 Optional Scale

Related product manuals