EasyManua.ls Logo

Eaton CEAG DualGuard-S - Requirements and Prep; Storage Conditions

Eaton CEAG DualGuard-S
148 pages
To Next Page IconTo Next Page
To Next Page IconTo Next Page
To Previous Page IconTo Previous Page
To Previous Page IconTo Previous Page
Loading...
7
Mounting- and Operating Instruction CEAG DualGuard-S 40071860347 January 2020 www.ceag.de
2.7 Packaging
2.6 Transport Inspection
Immediately check the delivery upon receipt for complete-
ness and any transport damage.
In the event of clearly identifiable external transport damage,
do not accept delivery or only accept it with reservations.
2.7 Packaging
If no take-back agreement for packaging has been conclu-
ded, separate the materials according to Typee and size and
forward them for use or for recycling.
ATTENTION!
Always dispose of the packaging material in an environ-
mentally safe manner and in accordance with valid local
waste disposal regulations. Where appropriate, contract the
services of a recycling company.
The components included in the delivery can be identified eit-
her by number and Typee or on the basis of a battery drawing.
Do not stack pallets on top of one another.
Always observe the handling instructions on the packaging!
For products labeled “fragile” all measures should be taken
to prevent damage during transport.
2.8 Requirements and Prep
Prevent or remove soiling on surfaces, dust, etc.
The storage area should comply with
the following requirements:
Protect blocks against effects from wea-
ther, dampness or flooding.
Protect blocks against direct or indirect sunlight.
Storage rooms for Batterys should be
kept clean, dry and frost free.
Batterys must be protected against short-circuit
by metal objects or conductive contaminants.
Batterys must be protected from falling ob-
jects, against falling and tipping over.
2.9 Storage Conditions
Temperatures affect the self-discharge rate. D Storage on pal-
lets packaged with plastic foil is generally allowed. However,
this is not recommended if the room is subject to large tem-
perature fluctuations or if high relative humidity beneath the
foil results in condensation. Over time the condensation can
produce a white film on the lead poles (hydration) resulting
in a high rate of self-discharge produced by leakage current.
The stacking of pallets or devices is not permitted. Avoid
storing unpackaged blocks on surfaces with sharp edges. It
is recommended that the same Typee of storage conditions
be provided for separate batches, pallets or rooms.
2.10 Storage
Prior to assembly, store packaged items unopened and
according to labeling on the exterior.
Only store packages ander the following conditions:
• Never store out-of-doors
• Always store in a dry, dust-free place
It is in the interest of the user that storage time be kept as
short as possible.
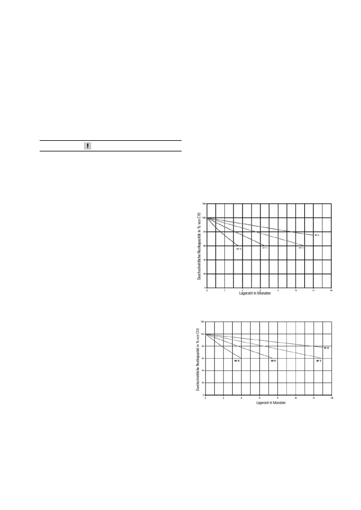
2.11 Storage Time
Maximum storage time is 12 months at a temperature of
20°C.
Higher Temperatures result in higher rates of self-discharge
and shorten the intervals
between re-charging.
Fig. 1: Sprinter – Residual Capacity in % of C10 versus storage
time at different temperatures
Fig. 2: Marathon – Residual Capacity in % of C10 versus
storage time at different temperatures

Table of Contents

Related product manuals