EasyManua.ls Logo

EBARA A70W - Page 22

EBARA A70W
69 pages
Print Icon
To Next Page IconTo Next Page
To Next Page IconTo Next Page
To Previous Page IconTo Previous Page
To Previous Page IconTo Previous Page
Loading...
(8)
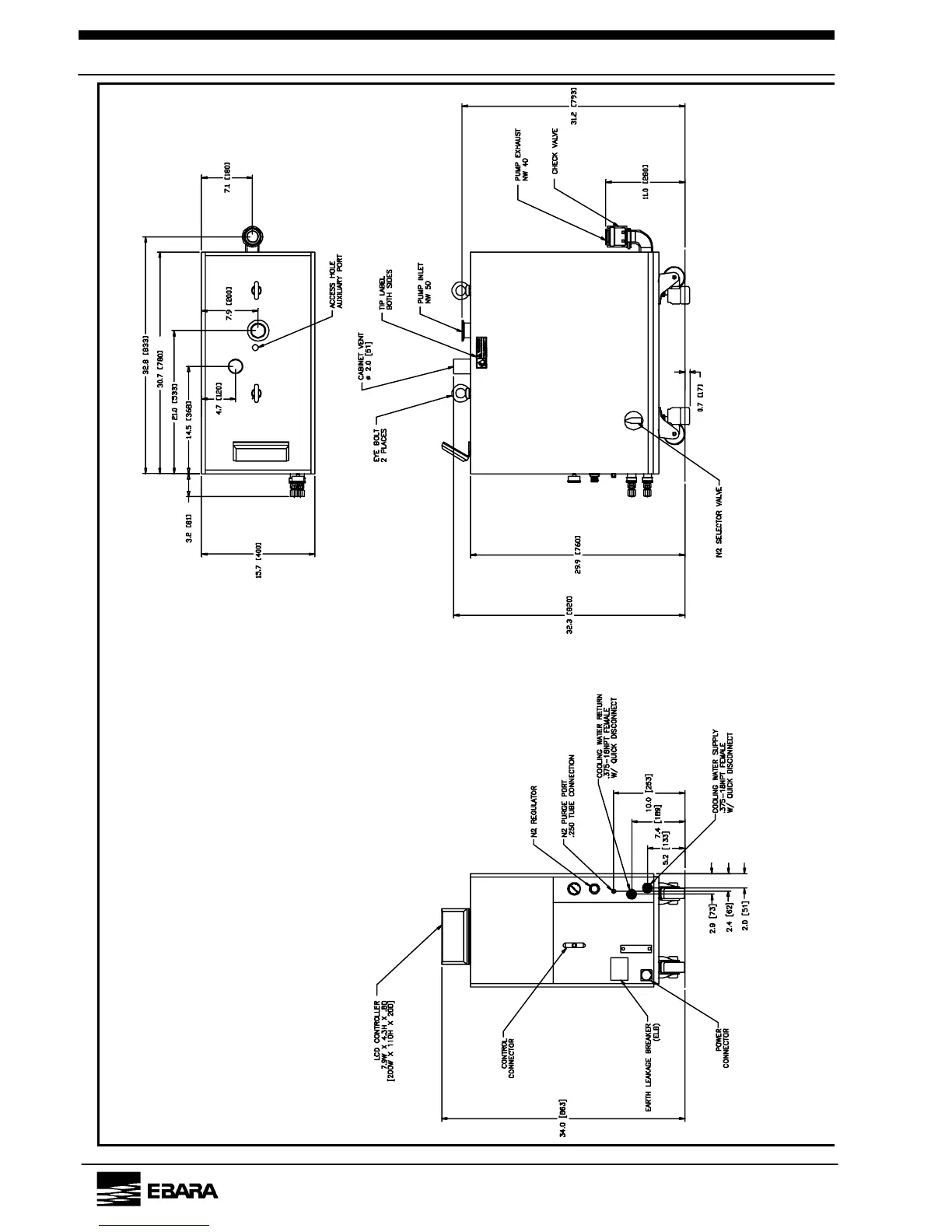
Outline Drawing A30W
EBARA Corporation

Related product manuals