EasyManua.ls Logo

Ecoflam Blu 1000 PR/MD - LANDIS LGB22.330 A27 CONTROL UNIT; Wiring and Operation Settings; LANDIS SQN31.251 A2700 MOTORIDUTTORE; Wiring and System Description

Ecoflam Blu 1000 PR/MD
Print Icon
To Next Page IconTo Next Page
To Next Page IconTo Next Page
To Previous Page IconTo Previous Page
To Previous Page IconTo Previous Page
Loading...
pag.71
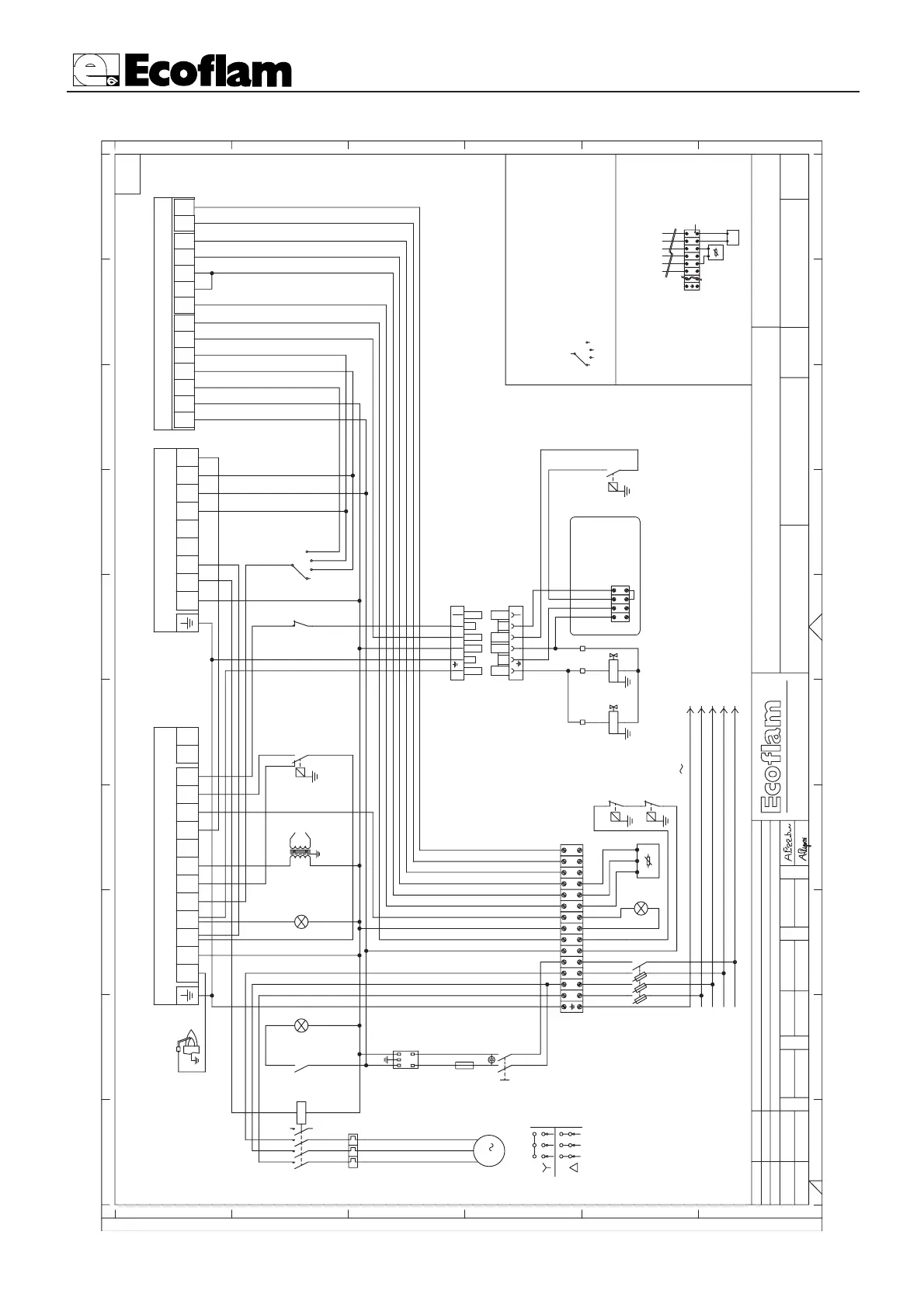
LB 381 BLU 500 -1400 PR / MD ABCD
AL MORSETTO R DELLA MORSETTIERA
E SPOSTARE IL FILO DAL MORSETTO N
CAMBIARE I COLLEGAMENTI DEL MOTORE
PER COLLEGAMENTO IN 230V TRIFASE
FOR 230V THREE PHASE CONNECTION
TO TERMINAL R OF THE TERMINAL STRIP
AND MOVE THE WIRE OF TERMINAL N
CHANGE THE CONNECTIONS OF THE MOTOR
A LA BORNE R DE LA BOITE A BORNES
ET DE PLACER LE CABLE DE LA BORNE N
MODIFIER LES CONNEXIONS DU MOTEUR
POUR CONNEXION EN 230V TRIPHASE
PARA CONEXION EN 230V TRIFASICA
MODIFICAR LAS CONEXIONES DEL MOTOR
Y ALEJAR EL CABLE DEL BORNE N AL
BORNE R DE LA CAJA DE BORNES
BLUE
YELLOW-GREEN
BLACK
BROWN
CONTROLE D'ETANCHEITI
CONTROL DE ESTANQUIDAD
PREDISPOSICION
PREVU POUR LE
PREDISPOSED
LEKAGE CONTROL
PREDISPOSIZIONE
CONTROLLO DI TENUTA
IND.MODIFICA
SOST.DA
SOST.IL
IND.MOD.
PROPRIETA' RISERVATA DELLA DITTA ECOFLAM S.p.A.
DATA-FIRMA
DATA
FIRMA
CONTROLLATO
DESCRIZIONE MODIFICA
DISEGNATO
DATA
FIRMA
COMUNICARE A TERZI IL CONTENUTO DEL PRESENTE.A TERMINE DI LEGGE E' VIETATO RIPRODURRE O
CONTROLLO DI TENUTAAPPARECCHIATURA
UFF.TECNICO-SETTORE ELETTRICO
DENOMINAZIONE
SIST. RIVELAZ. CODICE
MOTORIDUTTORE
QBE620-P
GL M U1
3
M
LINE
LOAD
T
P
T
P
QAE2..
M B
QAC2...
MB
M1
LANDIS RWF 40
LN
Q
Q14
Y2Y1
Q13
G+ G- B9U1 G1+ M9
00 01 02 03 04 05 06 07 08 09
A
00 01 02 03 04 05 06 07 08 09
B
C
D
E
A
B
C
D
E
S.p.A.
P
T
P
T
PAGINA DI
FMV
95
96
S3
LANDIS SQN31.251A2700
BEM08098
MODULAIR 500 - 700 -1000 - 1200 - 1400 rampa separata LANDIS SQN31.251A2700
LANDIS LGB22.330A27 PREDISPOSTO ER
18-02-2004
YVGSYVG
STC
SA
Q
09-03-2004
HLB
50 Hz 400V
STS
T
N
S
PE
R
FMV
97
98
230V
400V
MV UVW
KMV
RSTNO
FMV
12 31 327 98 103254 6 111
ER
14
TV
Z
N
SAL
TRS
FU
98657 131110 12
HLBT
HLF
L1
P1P1 N
N T2T1
L1 T1N T2 S3
SPA
LANDIS LGB 22.330A27
MORSETTIERA
INTERNA QUADRO
SPGmin
COLLEGAMENTO SONDA PASSIVA
COLLEGAMENTI AL
REGOLATORE RWF 40
QAE2..., FT-TP/...
SP
109
SE
1411 1312
8354 67N 1 2
SAMA
12
3
0
SWITCH MANUAL-AUTOMATIC
INTERRRUPTEUR MANUEL-AUTOMATIQUE
CONMUTADOR MANUAL-AUTOMATICO
COMMUTATORE MANUALE-AUTOMATICO
pos 1: ALTA FIAMMA/HIGH FLAME/2meALLURE/ALTA LLAMA
pos 3: AUTOMATICO/AUTOMATIC/AUTOMATIQUE/AUTOMATICO
pos 2: BASSA FIAMMA/LOW FLAME/1re ALLURE/BAJA LLAMA
pos 0: FERMO / STOP
SAMA
12
3
0
1/2

Related product manuals