EasyManua.ls Logo

EdilKamin Iris Plus - Technical Specifications; Model-Specific Technical Data; Electrical and Safety Features

EdilKamin Iris Plus
16 pages
Print Icon
To Next Page IconTo Next Page
To Next Page IconTo Next Page
To Previous Page IconTo Previous Page
To Previous Page IconTo Previous Page
Loading...
page 4
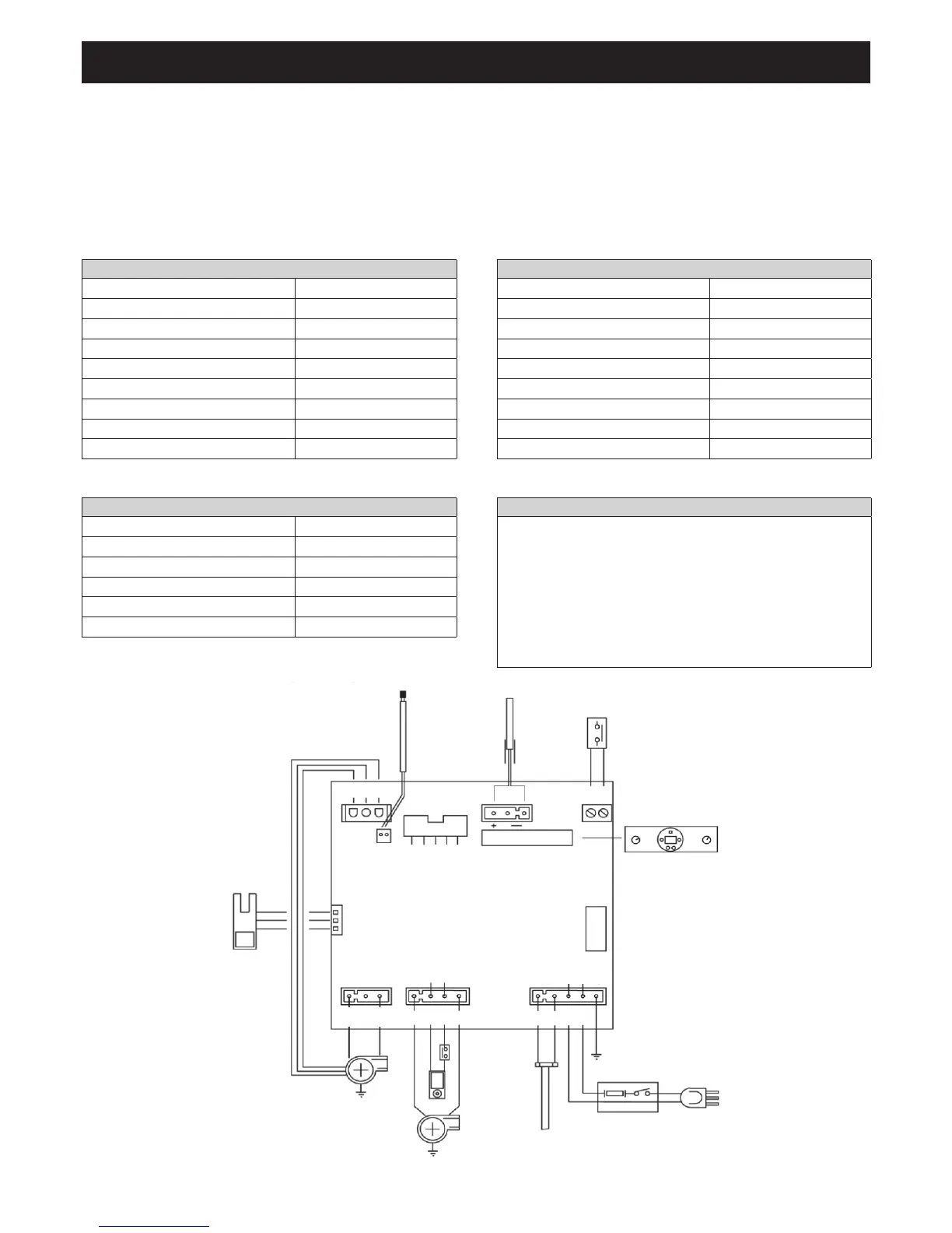
2A FUSE
AUX
2A FUSE

RS232
RS485


P/TEMP

FLOW

ROOM

SCREW
FEEDER MOTOR




THERMOCOUPLE

SMOKE

MOTOR
SMOKE SPEED
SAFETY
THERMOSTAT
Technical Specifications (Iris Plus & Little models)
IRISPLUS&LITTLEMODELS(SAFETYDEVICES)
Thermocouple: Placed at the smoke outlet to detect the temperature,
turns the pellet fire on and off and controls its operation based on
defined parameters.
Air flow sensor: Installed at the intake duct, it trips when the

smoke circuit.
Safety thermostat: Trips when the temperature inside the pellet fire is
too high. It stops pellet loading, causing the pellet fire to shut down.
IRISPLUS&LITTLEMODELS(ELECTRICALSPECIFICATIONS)
Power supply 
0/1 switch yes
Average power consumption 150 W
Power consumption during ignition 400 W
 infrared
Electronic circuit board protection 5 x 20 2 A 250 VAC fuse
IRISPLUS(TECHNICAL&HEATINGSPECIFICATIONS)
Hopper capacity 15kg
Efficiency 
Heat Output 3.4/8kW
 
Fuel consumption 0.9/2.0 kg/h
Heatable room dimensions 150m2
Weight 140kg
Smoke duct diameter (male) 80mm
Air intake duct diameter (male) 40mm
LITTLE(TECHNICAL&HEATINGSPECIFICATIONS)
Hopper capacity 15kg
Efficiency 
Heat Output 3.4/5kW
 10/30 hours
Fuel consumption 0.5/1.45 kg/h
Heatable room dimensions (min/max) 120m2
Weight 136kg
Smoke duct diameter (male) 80mm
Air intake duct diameter (male) 40mm
The heatable room dimensions are calculated on the basis


important to consider the location of the pellet fire in the room
heated.
Please note: External electrical devices may cause interference. Work
related to live parts/components, servicing and/or inspections must be
carried out by qualified staff.
Optional extras
 Remote Control (cod. N. 254160)
It is possible to buy a remote control to turn the pellet fire


Other manuals for EdilKamin Iris Plus

Related product manuals