EasyManua.ls Logo

Edwards STP-iXA3306BV

Edwards STP-iXA3306BV
181 pages
To Next Page IconTo Next Page
To Next Page IconTo Next Page
To Previous Page IconTo Previous Page
To Previous Page IconTo Previous Page
Loading...
STP-iXA3306 Series Turbomolecular Pump
MT-82E-001-H
Page 63
4
OPERATION
4.8 LED
Three LEDs indicate the pumps operational state.
LED
Power on
state
(Levitation
state)
Acceleration
state
Deceleration
state
Warning/
Failure state
POWER
(green)
Steady green
Steady green
Steady green
Steady green
(OFF only at power
failure)
ROTATION
(green/orange)
Extinguishes
Green
Orange
See left
2,000 rpm or less: 1 flash
2,000 to 10,000 rpm: 2 flashes
10,000 to 20,000 rpm: 3 flashes
20,000 to 24,500 rpm:
Continuous flash
24,500 to 27,700 rpm
or under normal operation:
Steady (see Figure 35)
FAILURE
(orange/red)
Warning state: Flashing orange
(The flashing pattern of the LED indicates the type of warning.
See Section 7, "WARNING Function")
Failure state: Flashing or steady red
(The flashing pattern of the LED indicates the type of failure.
See Section 7, "WARNING Function")
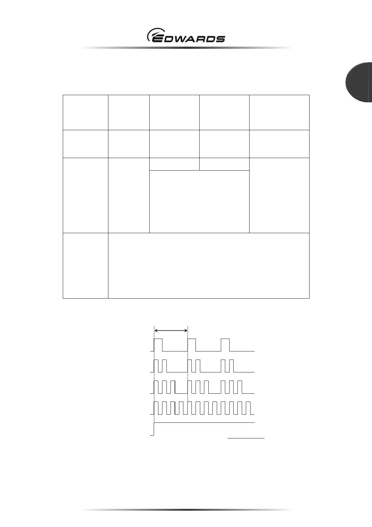
Table 17 - LED Indications for each state
ON
OFF
2,000 to 10,000 rpm
(2 flashes)
10,000 to 20,000 rpm
(3 flashes)
20,000 to 24,500 rpm
(Continuous flash)
24,500 to 27,000 rpm
or Normal operation state
(Steady)
1 cycle
2,000 rpm or moe
(1 flash)
消灯
OFF
OFF
OFF
ON
ON
ON
ON
LED luminescent color
Acceleration state: Green
Deceleration state: Orange
Figure 35 - "ROTATION" LED Indication

Table of Contents

Related product manuals