EasyManua.ls Logo

Effecta Pellets 222 - Technical Data

Effecta Pellets 222
22 pages
Print Icon
To Next Page IconTo Next Page
To Next Page IconTo Next Page
To Previous Page IconTo Previous Page
To Previous Page IconTo Previous Page
Loading...
Effecta AB - Västra Rågdalsvägen 21 - 434 99 Kungsbacka - +46(0)300 - 22320 - info@effecta.se
17
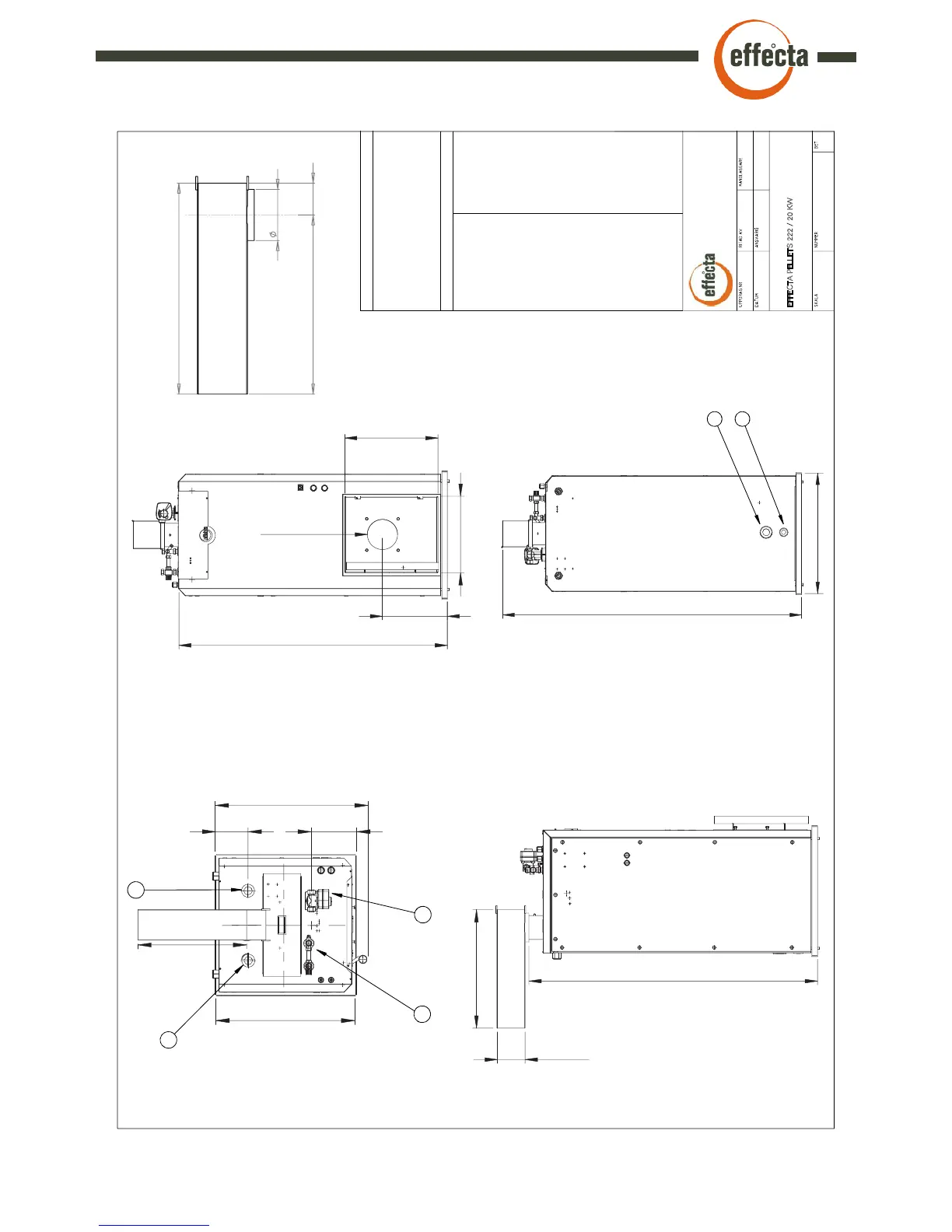
Technical data
EFFECTA PELLETS 222 / 20 KW
EFFECTA AB
Västra Rågdalsvägen 21 - 43496 kungsbacka
Tel: 0300-22320 - Fax: 0300-22395
E-post:info@effecta.se - www.effecta.se
012-02-01
V50-04-48
E.A
TECHNICAL DATA
1. SHUNT
2. HOT WATER COIL
3. FLOW HOT WATER 1”
4. RETURN HOT WATER 1”
5. DRAIN COCK 1/2”
EXPLANATION
Width
Depth incl. hatch
Height
Weight
Max pressure
Smoke angle
Flue tube diameter
Floor to cc flue tube
Water volume
Recommended draft
Minimum chimney area
Electrical connection
Sheet tickness mantle
Shhet tickness combustion
Ash compartment volume
Ash compartment depth
Max effect
Max operating temperature
690 mm
740 mm
1560 mm
240 kg
1,5 bar
150X150 mm
126 mm
1630 mm
192 liter
15 pa.
120 mm
230 / 380 VAC
4 mm
4 mm
106 liter
510 mm
20 kW
99 gr
4
5
535
690
158
223
740
415
500
1456
164
350
630
150
1545
1702
690
2
1
3
3
NYA EFFECTA LAMBDA 35
EFFECTA AB
Västra Rågdalsvägen 21 - 43496 kungsbacka
Tel: 0300-22320 - Fax: 0300-22395
E-post:info@effecta.se - www.effecta.se
010-08-15
V50-05-23
E.A
TEKNISK DATA
1. FRAMLEDNING ACKUMULATOR 1 1/4”
2. RETURLEDNING ACKUMULATORTANK 1 1/4”
3. AVTAPPNINGSKRAN 1/2”
225990
1210
1260
350
630
153
535 95
1290
1
2
3
1190
1280
600
FÖRKLARINGAR
Bredd
Djup inkl. Rökstos
Höjd
Vikt
Max arbetstryck
Rökrörsvinkel
Rökstos ytterdiameter
Golv centrum rökrör
Vattenvolym
Vedlängd
Skorstensdrag rek.
Min skorstensarea
Elanslutning
Plåttjocklek mantel
Plåttjocklek eldstad
Eldstadsvolym
Eldstadsdjup
Effekt fläktmotor
Effekt
Max driftstemperatur
Påfyllningslucka
Rek. tankvolym
600 mm
1260 mm
1280 mm
350 kg
1,5 bar
150x150x630 mm
140 mm
1260 mm
90 liter
500 mm
15 pa.
130 mm
230 VAC
4 mm
5 mm
145 liter
540 mm
100 w
35 kW
99 gr
400x260 mm
1500-3000 liter

Related product manuals