EasyManua.ls Logo

elco Minifill-E - Fault Finding; Controls Schematic

elco Minifill-E
18 pages
Print Icon
To Next Page IconTo Next Page
To Next Page IconTo Next Page
To Previous Page IconTo Previous Page
To Previous Page IconTo Previous Page
Loading...
15
13.0 Fault Finding
Fault Finding
Fault Possible Cause Action
Pump will not run • Unit up to pressure
• No power to unit
• Isolator fuse blown
• Cut in pressure set incorrectly
• Pump seized or faulty
• None
• Check at source
• Replace fuse. Note – investigate the cause of the blown fuse
• Adjust cut in pressure
• Service or replace pump
Pump runs but will
not build up
pressure
• Pump isolating valve closed
• Pump not primed
• Float switch faulty
Pump non return valve jammed
• Blocked flow restrictor
• Open valve
• Prime pump
• Check water level and replace float switch
• Check valve
• Check flow restrictor for blockage
Pump cuts in & out
rapidly
Value of cut in and cold fill pressure set
incorrectly
• Non return valve not sealing correctly
• System leak
• Adjust values
• Clean valve seat or replace valve if necessary
• Trace leak and ensure system is sound
Pump runs
continuously
Value of cold fill pressure set incorrectly
• Pump relay faulty
• System leak
• Adjust value
• Replace faulty relay pcb in grey box
• Trace leak and ensure system is sound
Pump cuts out at
wrong pressure
• Pressure gauge is inaccurate
• Internal pressure sensor faulty
• Replace pressure gauge
• Replace pressure sensor
Maximum system
working pressure is
too high
• Cold fill pressure set incorrectly
• Internal pressure sensor faulty
• Adjust value
• Replace pressure sensor
Boiler switches off
unexpectedly
• Hi or Lo pressure alarms set incorrectly
• Safety circuit is wired incorrectly
• Adjust values
• Check wiring against wiring diagram
System pressure
runs consistently at
cold fill pressure
• Small system leak
• Trace leak and ensure system is sound
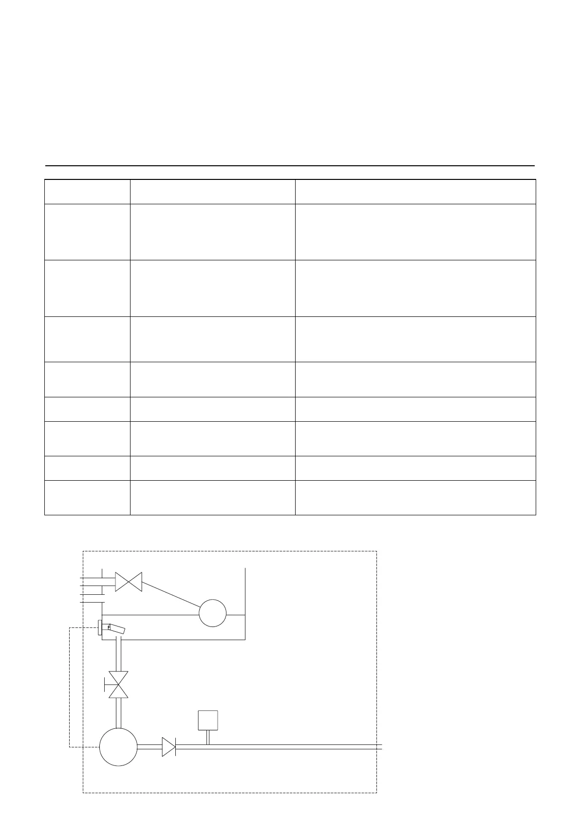
Figure 12 – Controls Schematic
COLD WATER
INLET
OVERFLOW
BALL VALVE
LOW LEVEL ALARM
ISOLATING VALVE
NON
RETURN
VALVE
PUMP
0.7HP
2.8A
PRESSURE
SENSOR
PRESSURISATION UNIT
TO SYSTEM

Related product manuals