EasyManua.ls Logo

Electrolux Smart - Boiling and Hot Keep

Electrolux Smart
40 pages
Print Icon
To Next Page IconTo Next Page
To Next Page IconTo Next Page
To Previous Page IconTo Previous Page
To Previous Page IconTo Previous Page
Loading...
INSTALLATION INSTRUCTIONS | SMART LINE BOILING PAN
EN | 10-2018 DOC N° ST0 9183-02 21
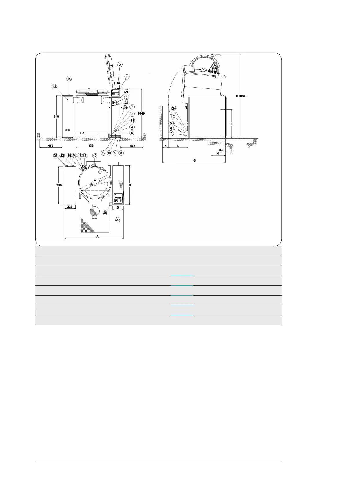
12.2 Dimensions and connection points, boiling pans with option ice
water cooling (SV6I, SP6I)
Volume Dimensions (mm) .
(L) A Ø B C D E G H J K L
50 1050 538 838 230 1644 1245 250 638 200 250
80 1220 705 838 230 1792 1375 305 620 200 375
100 1220 705 838 230 1792 1420 305 620 200 425
150 1360 816 988 250 1909 1480 305 620 200 335
200 1405 867 988 250 1964 1550 305 620 200 405
300 1555 1018 988 250 2118 1600 305 620 200 455
1. Control panel
2. Hand shower (accessory)
3. Emergency stop
4. Electrical connection from rear
5. Water connection, hot water from rear:
DN15(G1/2”) Int.thread
6. Water connection, cold water from rear:
DN20 (G3/4”) male thread
7. Equipotential screw
8. Foundation frame or mounting frame
(accessory)
9. Water connection, cold water from floor:
DN20 (G3/4”) male thread
10. Water connection, hot water from floor:
DN15(G1/2”) Int.thread
11. Steam connection from rear 110-170 kPa
(1,1-1,7 bar): DN20 (G3/4”) Int.thread
12. Electrical connection from floor
13. Condensation connection:
DN20 (G3/4”) Internal thread
14. Left column (Tillbehör)
15. Steam trap
16. Manometer
17. Safety valve
18 Hydrostatic testing tap
20. Floor drain (accessory)
21. Pushbutton, agitation without grid
(SMARTMIX)
22. Intake ice water connection (1.1-1.7 bar):
DN25 (G1”) male thread
23. Outlet ice water connection
(depressurized): DN25 (G1”) male thread
24. Connection, Start/Stop of external pump
25. USB port (Option)
26. Foot pedal (Option)
Fig. 2

Table of Contents