EasyManua.ls Logo

Electrolux WD4130 - Page 8

Electrolux WD4130
52 pages
Print Icon
To Next Page IconTo Next Page
To Next Page IconTo Next Page
To Previous Page IconTo Previous Page
To Previous Page IconTo Previous Page
Loading...
8
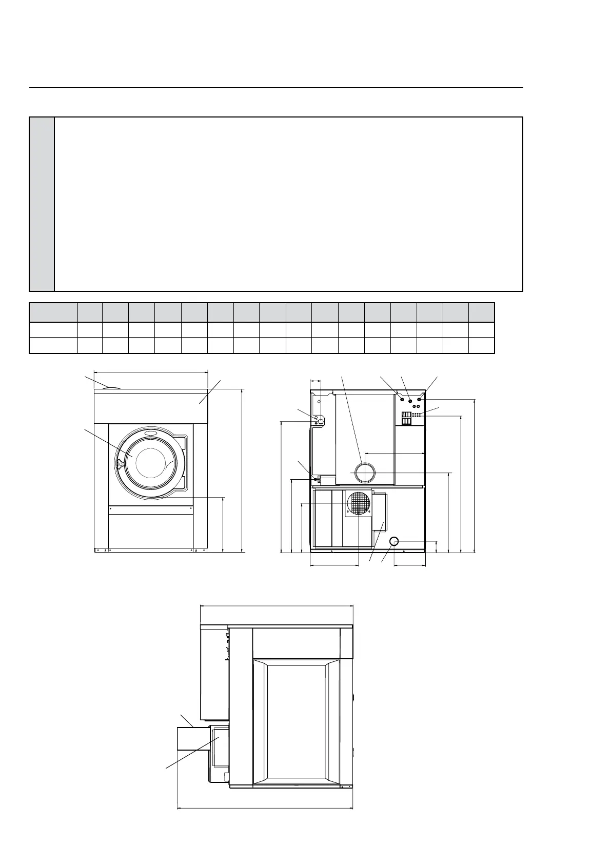
Technical data
 A B C D E F G H I K L M N O P Q
WD4130 910 1110 1330 435 1195 1055 90 1240 1095 105 275 385 410 535 585 450
WD4240 1020 1350 1450 500 1550 1170 95 1360 1215 105 265 440 430 650 710 535
1 Electrical connection
2 Cold water
3 Hot water
4 Cold or hot water
5 Drain
6 Gas connection
7 Liquid detergent supply
8 Control panel
9 Soap box
10 Door opening, WD4130: ø395, WD4240: ø435
11 Exhaust connection
12 Fan inverter (adjustable speed setting)
13 Air inlet (option) WD4130 ø125, WD4240 ø160
Front Rear side
Left view
3 4
2
7
I
H
P
6624 B
K
L
N
5
F
O
M
1
6
G
13
Q
12
6625
A
C
D
10
9
8
B
E
6623
11
12

Related product manuals