EasyManua.ls Logo

Embassy ONEX - Functional Wiring Diagram

Embassy ONEX
80 pages
Print Icon
To Next Page IconTo Next Page
To Next Page IconTo Next Page
To Previous Page IconTo Previous Page
To Previous Page IconTo Previous Page
Loading...
68
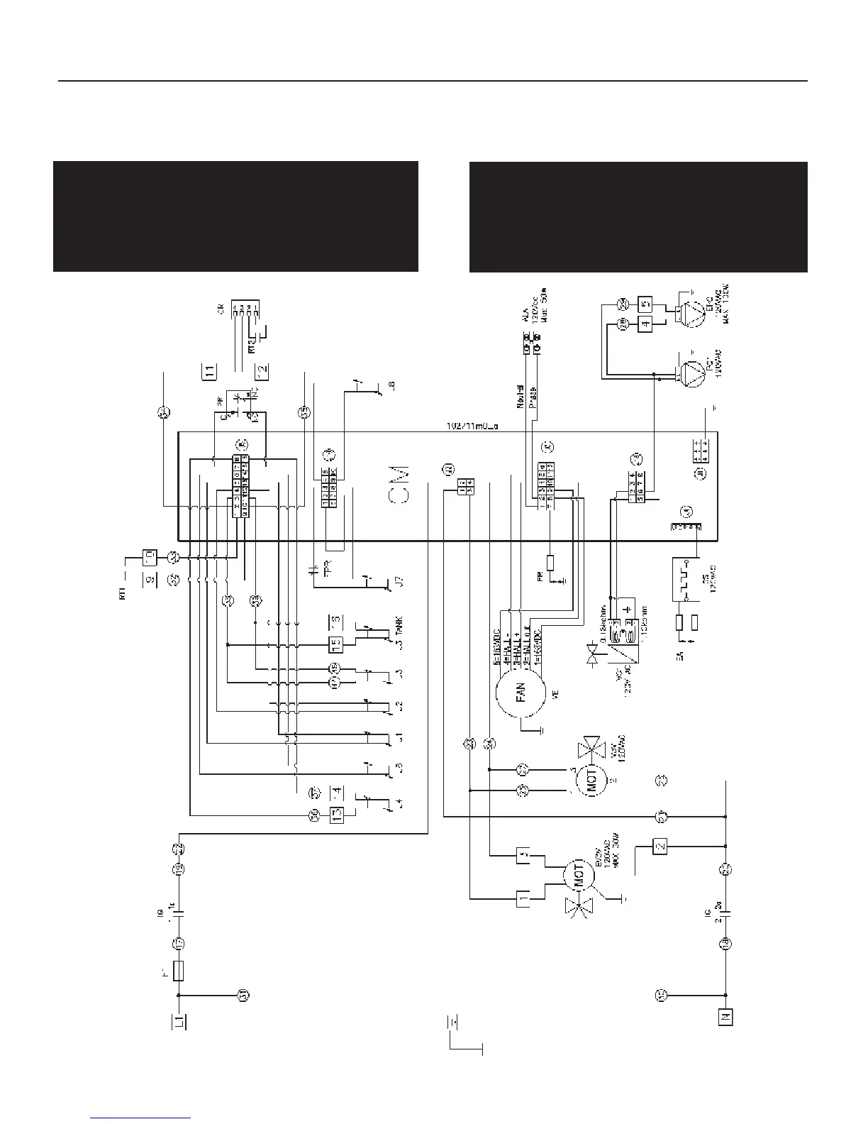
13.16 - Functional wiring
diagram
WARNING!!! Label all wires prior to disconnection
when servicing controls. Wiring errors can cause
improper and dangerous operation! Verify proper
operation after servicing Failure to comply with this
warning can cause extensive property damage,
severe personal injury or death!
13 - MAINTENANCE
ATTENTION!!! Au moment de l’entretien des
commandes, étiquetez tous les fils avant de les
débrancher. Des erreurs de câblage peuvent
entraîner un fonctionnement inadéquat et
dangereux. S’assurer que l’appareil fonctionne
adéquatement une fois l’entretien est terminé.

Table of Contents