EasyManua.ls Logo

Emec KMS MF - 5. INSTALLATION DRAW; Installation Diagram and Components

Emec KMS MF
68 pages
Print Icon
To Next Page IconTo Next Page
To Next Page IconTo Next Page
To Previous Page IconTo Previous Page
To Previous Page IconTo Previous Page
Loading...
11
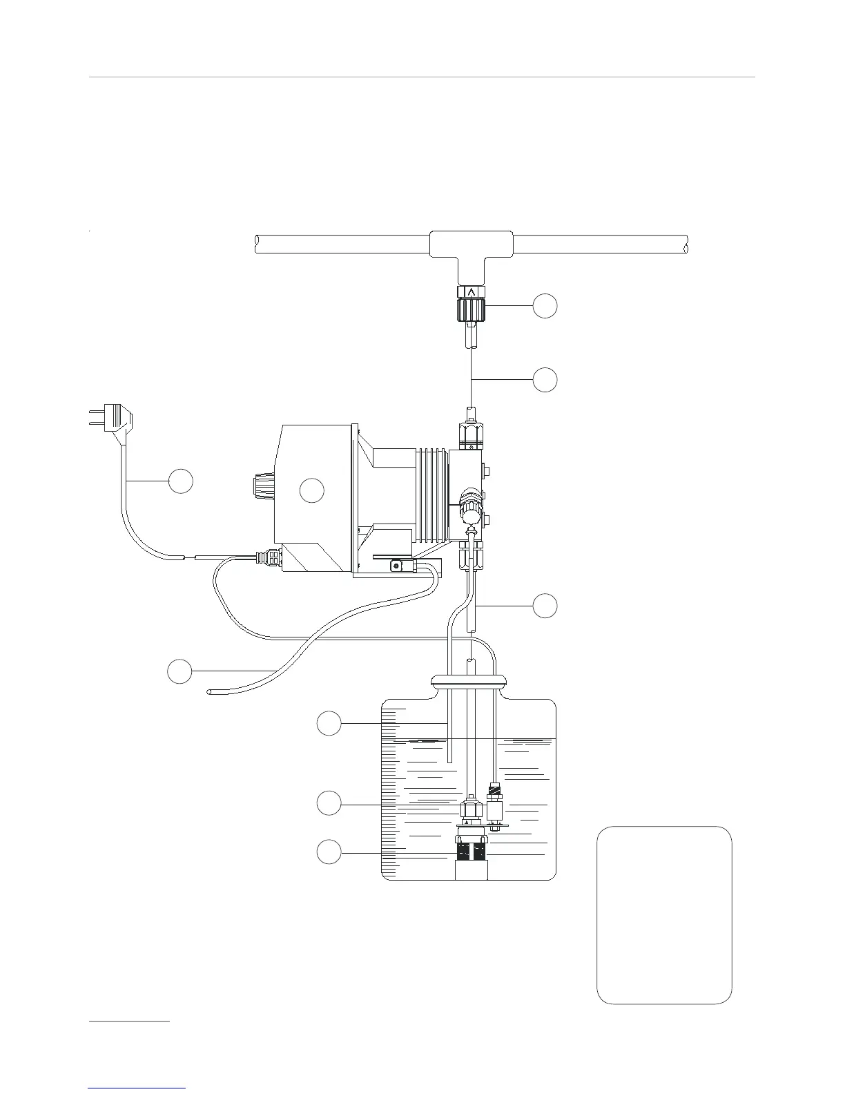
5. INSTALLATION DRAW
Pump must be installed in a stable support (for example a table) at a maximum height (from tank’s bottom) of 1,5 meters.
1 - Dosing Pump
2 - Suction Hose
3 - Delivery Hose
4 - Injection Valve
5 - Air venting
6 - Level Probe
7 - Foot Filter
8 - Power Cable
9 - Standby / Alarm
1
2
3
4
5
6
7
8
9

Related product manuals