EasyManua.ls Logo

Emerson MP25A4 - Figure 3-9 Size 2 C Front View and Mounting Dimensions

Emerson MP25A4
182 pages
Print Icon
To Next Page IconTo Next Page
To Next Page IconTo Next Page
To Previous Page IconTo Previous Page
To Previous Page IconTo Previous Page
Loading...
Safety
Information
Product
information
Mechanical
Installation
Electrical
installation
Getting
started
Basic
parameters
Running the
motor
Optimization
SMARTCARD
operation
Onboard
PLC
Advanced
parameters
Technical
data
Diagnostics
UL
information
20 Mentor MP User Guide
www.controltechniques.com Issue: 3
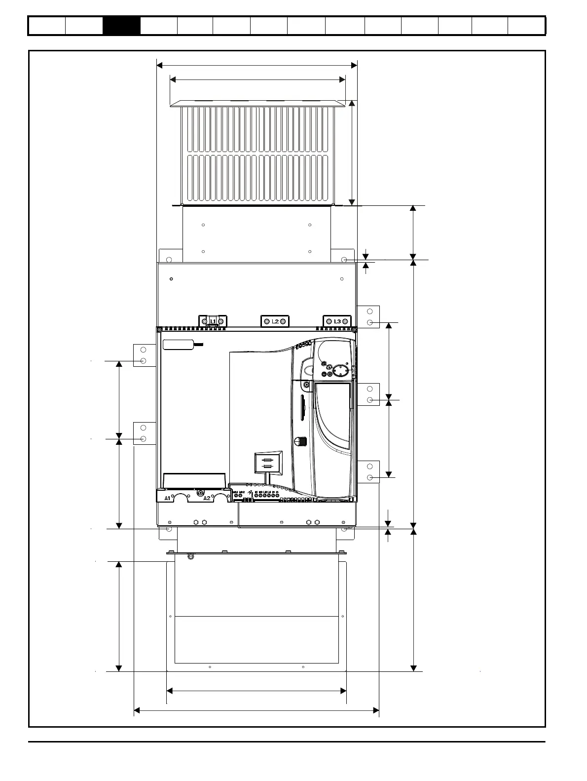
Figure 3-9 Size 2C front view and mounting dimensions
6mm (0.24in)
175mm (6.9in)
5mm
(0.2in)
175mm (6.9in)
405mm (15.94)
248mm (9.76in)
202mm (7.95in)
321mm (12.64in)
605mm (23.82in)
124mm
(4.89in)
175mm (6.9in)
555mm (21.85in)
452mm (17.8in)
2
0
2
m
m
(
7
.
9
5
i
n
)
390mm (15.35in)

Table of Contents

Related product manuals