EasyManua.ls Logo

Emerson SP2201 - Features of the Drive Sizes SPMA and SPMD

Emerson SP2201
220 pages
Print Icon
To Next Page IconTo Next Page
To Next Page IconTo Next Page
To Previous Page IconTo Previous Page
To Previous Page IconTo Previous Page
Loading...
Safety
Information
Introduction
Product
information
System
design
Mechanical
installation
Electrical
installation
Getting
started
Optimisation Parameters
Technical
data
Component
sizing
Diagnostics
18 Unidrive SP Regen Installation Guide
www.controltechniques.com Issue Number: 2
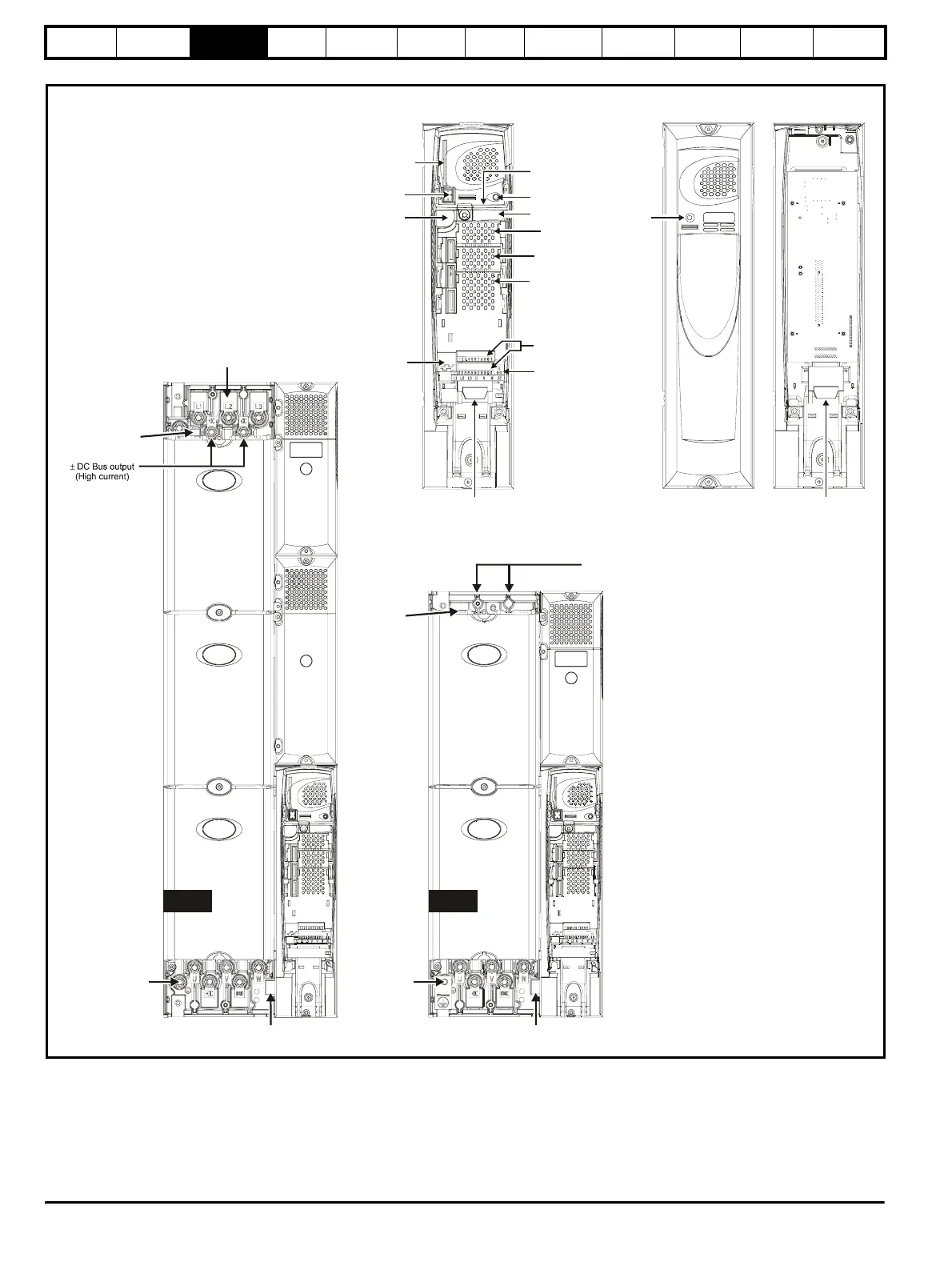
Figure 3-3 Features of the drive sizes SPMA and SPMD
Solutions Module
slot 2
SMARTCARD
slot
Keypad
connection
Serial port
connector
Encoder
connection
Control terminals
Solutions Module
slot 1
Solutions Module
slot 3
Rating label
Status LED
Approvals label B
Relay terminals
EMC capacitor
must be removed
Heatsink fan
supply connections
Master interface Slave interface
SPMA SPMD
Output connections
to slave
Input from Master
/
Output to slave
Status
LED
Cover Base
Charging input
(L1, L2, L3)
EMC capacitor
must be removed
AC supply
(U, V, W)
AC supply
(U, V, W)
Heatsink fan
suppl
y
connections
±
DC Bus output
(high current)

Table of Contents

Related product manuals