EasyManua.ls Logo

Evinox ModuSat TP 40-10 - Dimensions

Evinox ModuSat TP 40-10
45 pages
Print Icon
To Next Page IconTo Next Page
To Next Page IconTo Next Page
To Previous Page IconTo Previous Page
To Previous Page IconTo Previous Page
Loading...
10
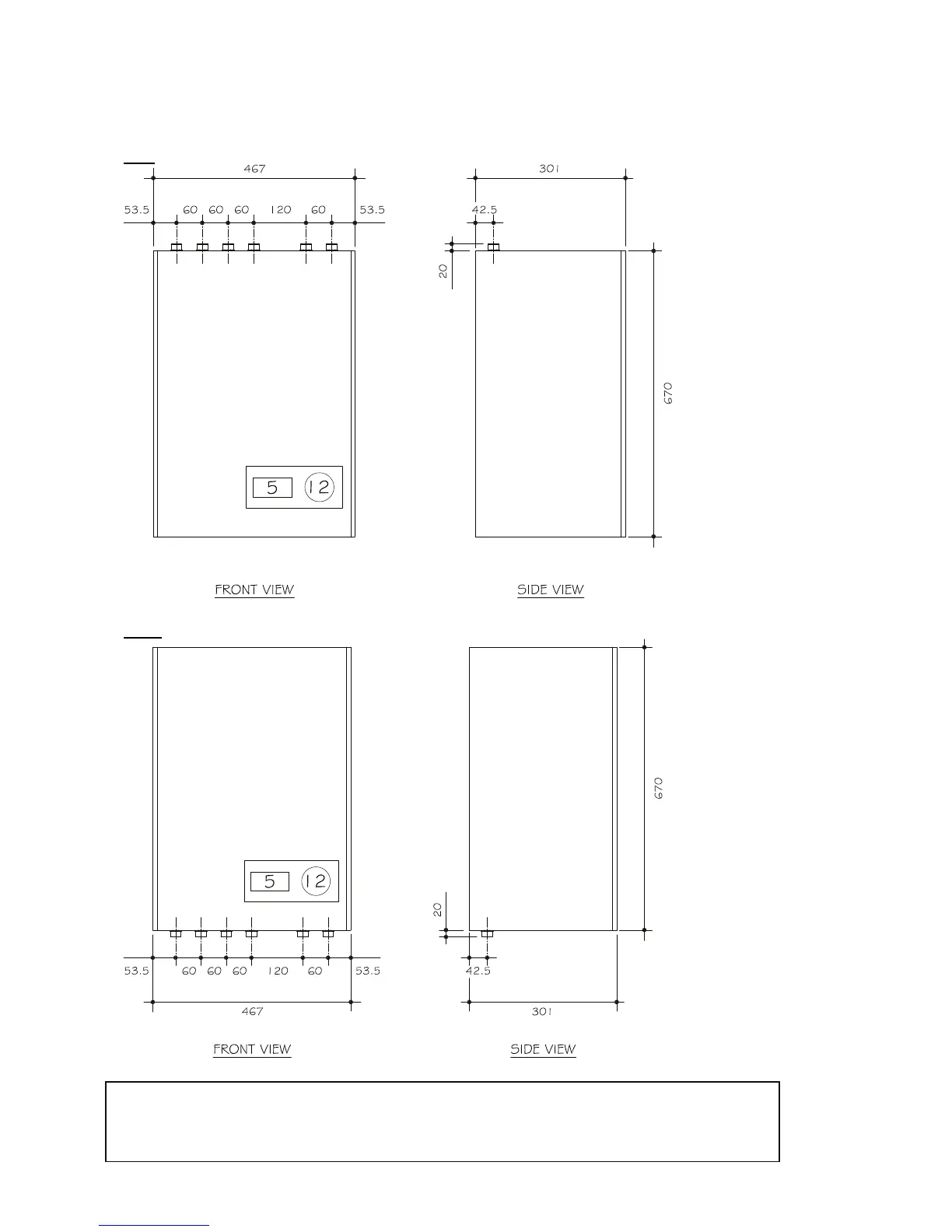
2.3 Typical Dimensions (Typical connection configurations shown)
TL1 - TP 40-10 & 50-10 All Top Connections
BL4 TP 40-10 & 50-10 All Bottom Connections
Note: For clarity, safety drain connections are not shown. Please refer to hydraulic arrangements.
Additional connection configurations available as detailed on pages 7-9 of this manual. For specific
hydraulic arrangements for other connection configurations please contact the Evinox Technical
Department on 01372 722277.