EasyManua.ls Logo

Evolution Aqua K1 MICRO BEAD 20 - How the K1 Micro Bead Filter Works

Evolution Aqua K1 MICRO BEAD 20
24 pages
Print Icon
To Next Page IconTo Next Page
To Next Page IconTo Next Page
To Previous Page IconTo Previous Page
To Previous Page IconTo Previous Page
Loading...
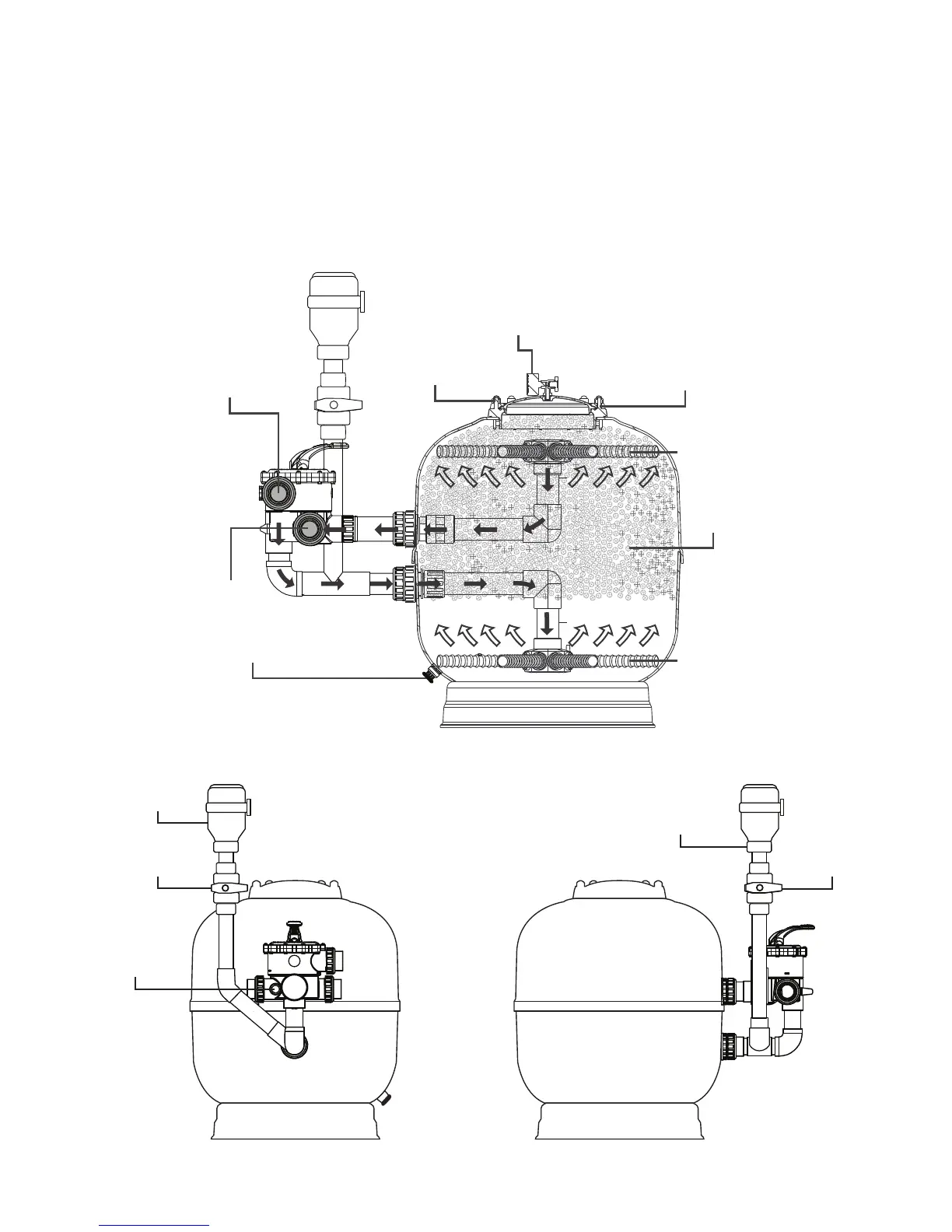
Water enters the filter from the pond into the multi-port valve (MPV) and is directed to
the bottom of the unit. As the water is pumped through the K1 Micro Bead Filter, dirt,
debris and waste are trapped by the K1 Micro and then the massive protected surface area
housing the filter bacteria biologically breaks down the Ammonia and Nitrite into Nitrate.
The filtered water is returned to the top of the unit through the multi-port valve and back to
the return line flowing back into the pond.
HOW THE K1 MICRO BEAD FILTER WORKS
INLET
K1 MICRO
LATERALS
COLLAR
BOLT DOWN LID
LATERALS
MULTI-
PORT
VALVE
WASTE
OUTLET
(Rear of MPV)
PRESSURE GAUGE
AIR
BLOWER
DRAIN
VALVE
OUTLET
AIR
BLOWER
BALL
VALVE
SIGHT
GLASS
BALL
VALVE
AIR
BLOWER
8
Figure 6b.
Figure 6a.

Related product manuals