EasyManua.ls Logo

FAFCO Sunsaver - SunSaver Collectors Wood Rack Mounted

FAFCO Sunsaver
43 pages
Print Icon
To Next Page IconTo Next Page
To Next Page IconTo Next Page
To Previous Page IconTo Previous Page
To Previous Page IconTo Previous Page
Loading...
®
38
SunSaver
®
Collectors Wood Rack Mounted
*
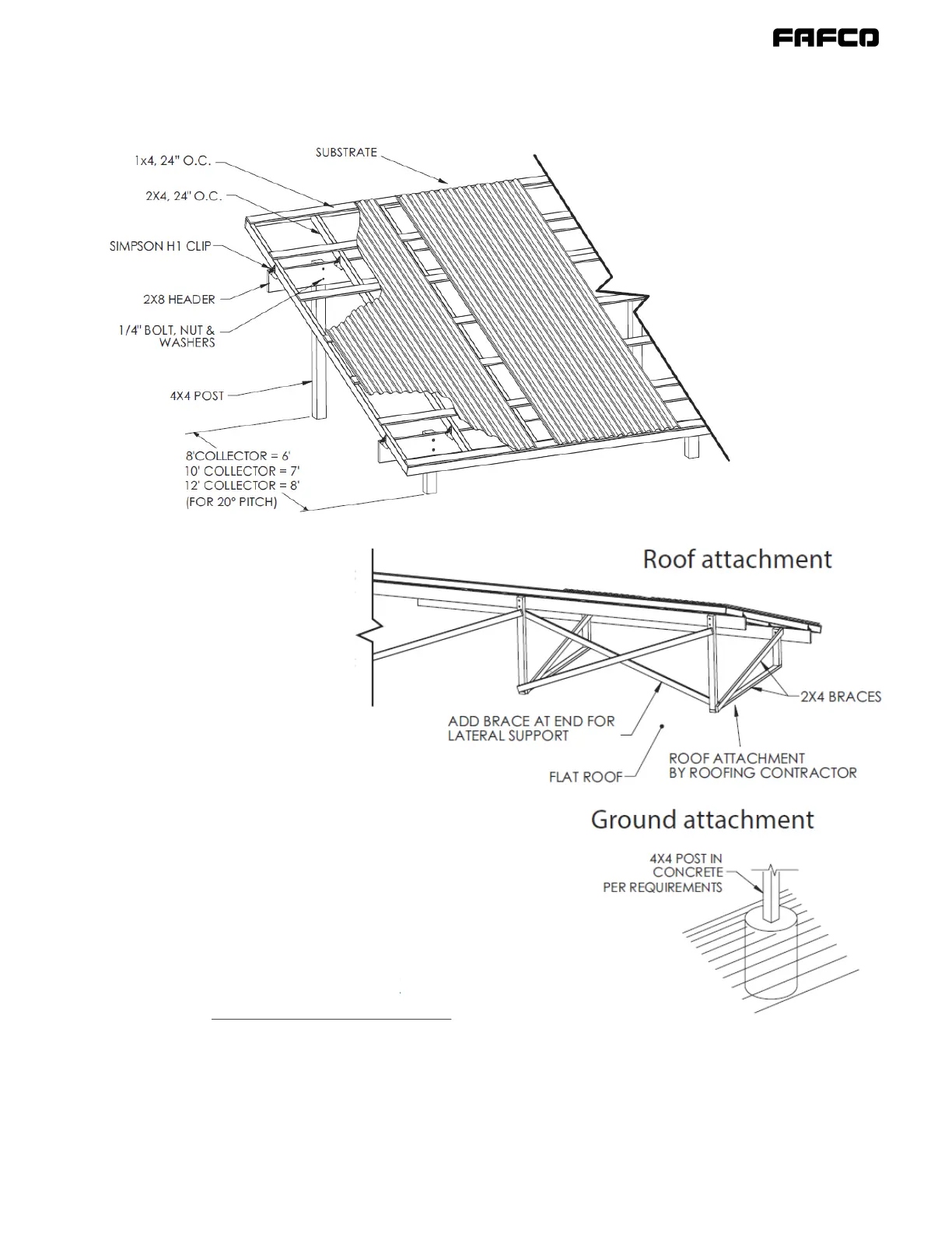
APPENDIX D Roof Mounting Details
The figures depict examples of a wood ground rack. Substrate is not required if the
rack has runners at a minimum spacing of 16”. If the rack has spacing greater than
16”, a substrate must be used to support the collector from excessive sagging.
*Panels are to be installed no more than 20 vertical feet below pool sur-
face to the bottom header due to static head pressure at stagnation tem-
peratures.
*
Figure 26 | Wood Ground Rack Mounting

Table of Contents