EasyManua.ls Logo

Falcon Classic 110 - Oven Circuit Diagram

Falcon Classic 110
48 pages
Print Icon
To Next Page IconTo Next Page
To Next Page IconTo Next Page
To Previous Page IconTo Previous Page
To Previous Page IconTo Previous Page
Loading...
41
P1
P2
P3
1
2
4
3
5
P038482
P095199
2
P2
P1
1
P095199
2
P2
P1
1
21 4 6
Classic & Professional + 110 IND
br bb b b
r
b
b
r
y
b
b
br
v
bk
bk
v
v
v
br
y
b
y
bk
v
y
br
b
br
b
br
b
bk
b
g/y
v
y
y
or
or
g/y
r
r
bk
br
br
y
v
w
b
bk
bk
v
br
b
r
b
b
v
b
b
r
r
r
v
v
y
y
w
w
b
r
b
r
b
b
bbr br
br
b
b
b
b
b
bk
br br b
br
v
E
A2
C
A1
L
H
G1
B3
B4
B5
B2
B1
D3
J
G2
H
F
D1
J
D2
D4
K
J
A3
Key
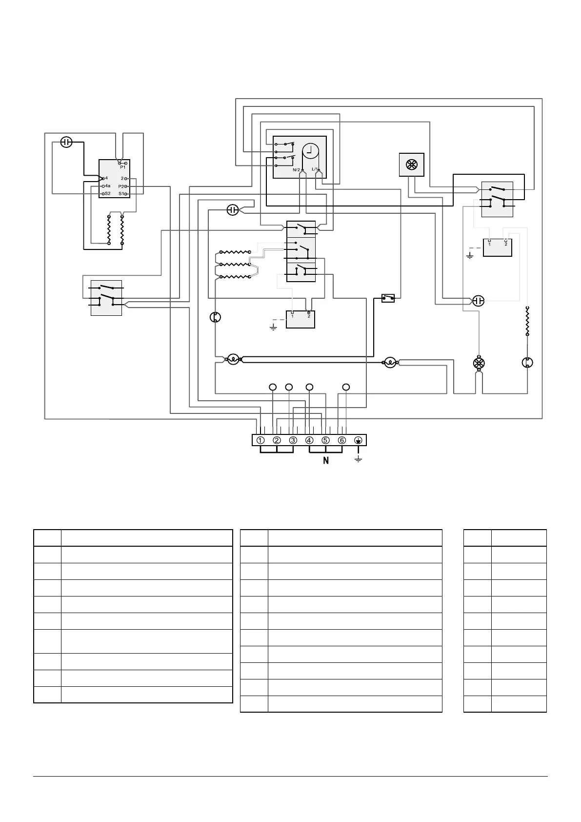
The connections shown in the circuit diagram are for single-phase. The ratings are for 230 V 50 Hz.
Oven
Code Description
A1 Grill front switch
A2 Grill energy regulator
A3 Grill elements
B1 Left-hand oven front switch
B2 Left-hand oven thermostat
B3
Left-hand oven browning element
(inner pair)
B4 Left-hand oven top element (outer pair)
B5 Left-hand oven base element
C Clock / timer
Code Description
D1 Right-hand oven front switch
D2 Right-hand oven thermostat
D3 Right-hand fan oven element
D4 Right-hand oven element
F Oven light switch
G1 Left hand oven light
G2 Right hand oven light
H Thermal cut-out
J Neon
K Cooling fan
Code Colour
b Blue
br Brown
bk Black
or Orange
r Red
v Violet
w White
y Yellow
g/y Green/Yellow
gr Grey

Other manuals for Falcon Classic 110

Related product manuals