EasyManua.ls Logo

Fancom iM.60 - 8 Bijlage: Aansluitschema

Fancom iM.60
71 pages
Print Icon
To Next Page IconTo Next Page
To Next Page IconTo Next Page
To Previous Page IconTo Previous Page
To Previous Page IconTo Previous Page
Loading...
gNd
20
n
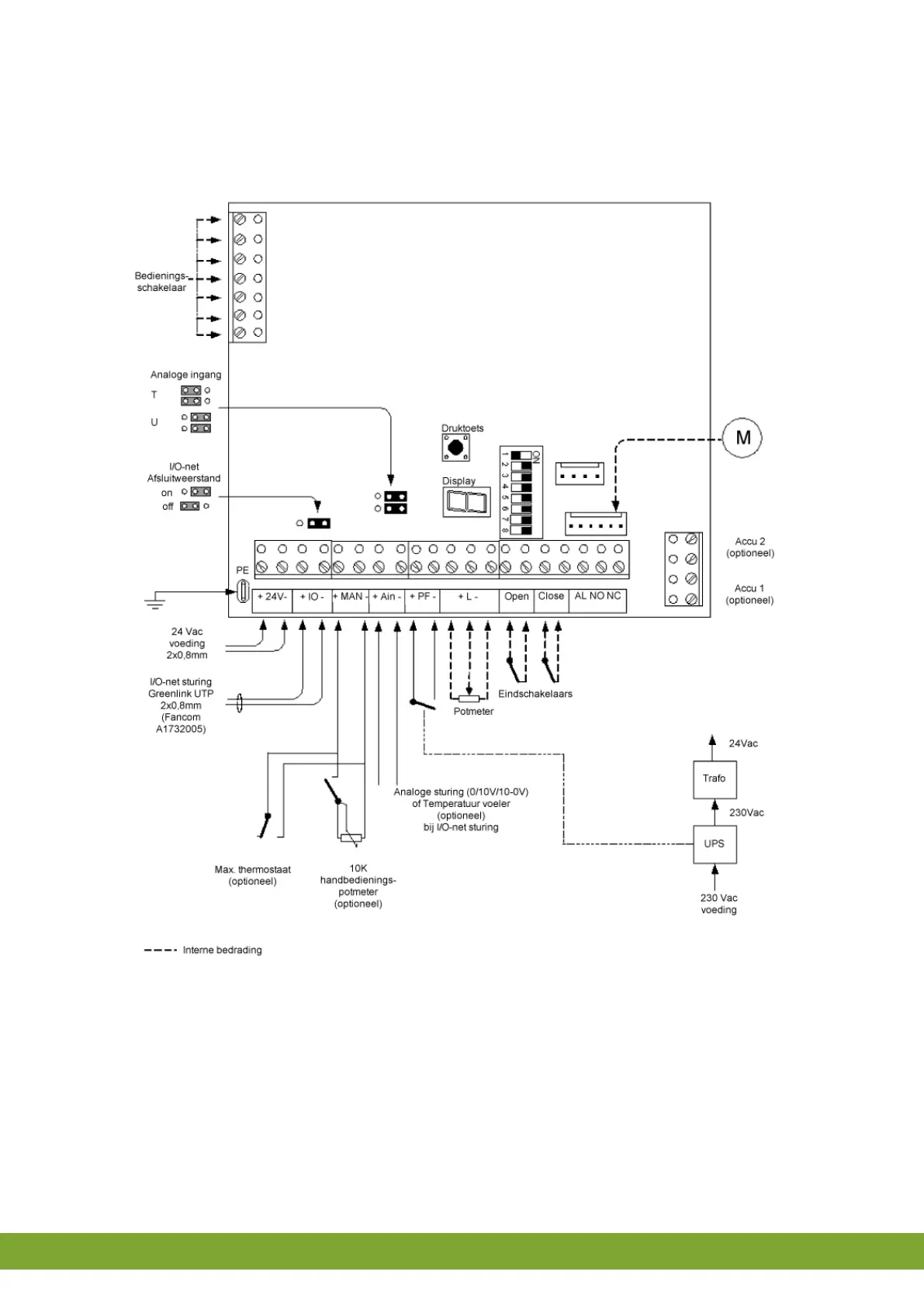
8. Bijlage: aansluitschema

Table of Contents

Related product manuals