EasyManua.ls Logo

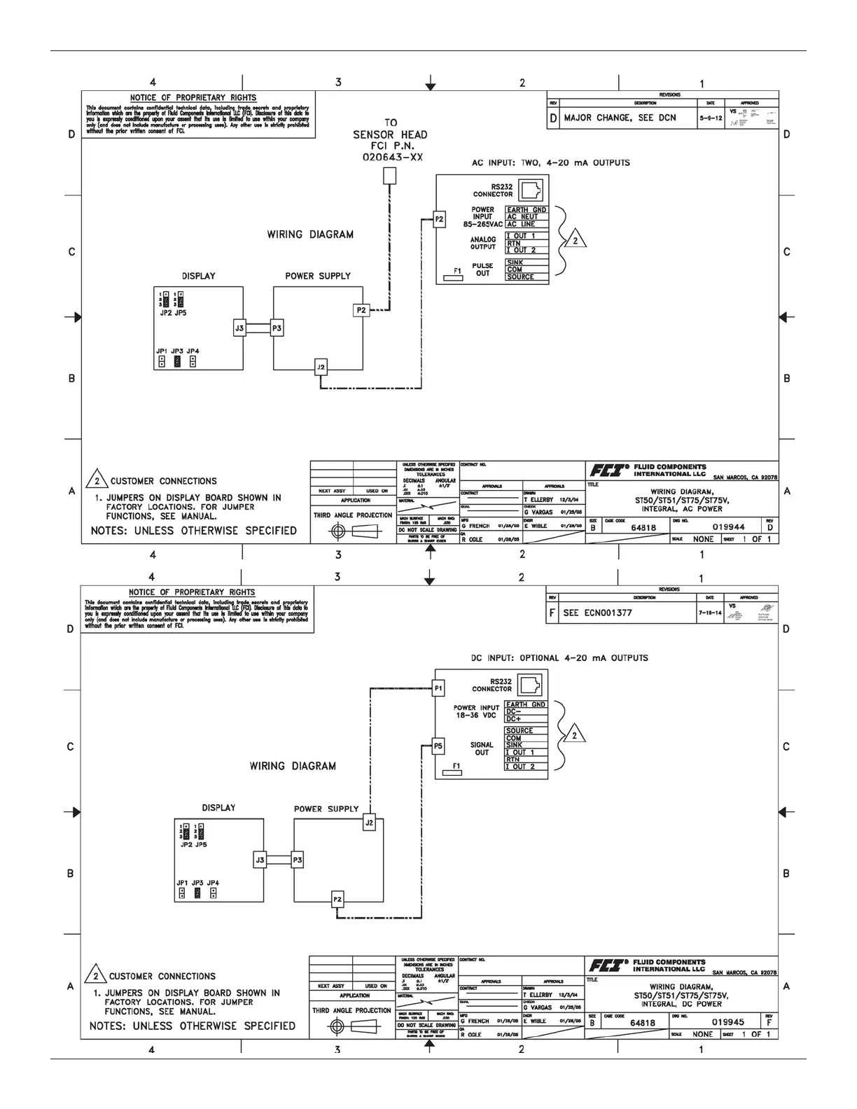
FCI ST50 - Wiring Diagrams - Integral Units; AC Input Wiring Diagram; DC Input Wiring Diagram

FCI ST50
38 pages
Print Icon
To Next Page IconTo Next Page
To Next Page IconTo Next Page
To Previous Page IconTo Previous Page
To Previous Page IconTo Previous Page
Loading...
This page is subject to proprietary rights statement on last page
31 Doc. No. 06EN003367 Rev. E
ST50 Mass Flow Meter Fluid Components International LLC

Other manuals for FCI ST50

Related product manuals