EasyManua.ls Logo

Federal RSSM360 - Page 57

Federal RSSM360
76 pages
Print Icon
To Next Page IconTo Next Page
To Next Page IconTo Next Page
To Previous Page IconTo Previous Page
To Previous Page IconTo Previous Page
Loading...
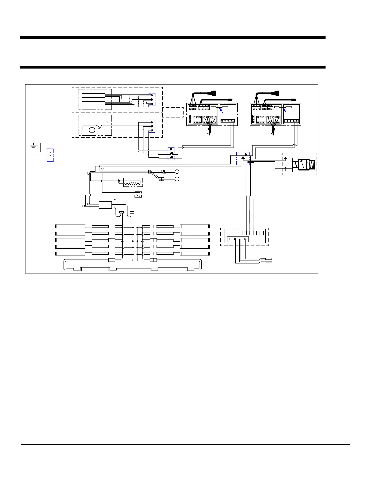
WIRING DIAGRAM
RSSM878R-6 & RSSD878R-6 REMOTE
R
BOX A
R
G
BLK
R
SOLENOID VALVE
BLK
BLK
Y
BL
REMOTE RSSM878 230V
91-21065-12 11/01/19 BJW
BOX B
R
R
BLK
R
BL (OR) W
G
BR
Y/G
BL
FLOAT SWITCH
Y/G
BL
PTC HEATER
CONDENSATE EVAPORATOR
M
BR
PTC HEATER
G
BR (OR) BLK
CONDENSATE PUMP
G
CONDENSATE PUMP
OR
CONDENSATE EVAPORATOR
AS PER ORDER
G
BLK
R
R
BLK
BLK
R
POWER IN
G
BLK
W
FIELD WIRING BOX
UNIT MUST BE GROUNDED
USE COPPER CONDUCTORS
ONLY FOR POWER
SUPPLY CONNECTIONS
W = WHITE
R = RED
BR = BROWN
G = GREEN
BL = BLUE
Y = YELLOW
COLOR CODE
BLK = BLACK
Y/G = YELLOW/GREEN STRIPE
BLK
R
EEV
5
4 3
2 1
SUCTION SENSOR
PRESS. TRANS.
Blk
Blk
Red
Wht
Yel
Grn
Org
Red
RSV-Blue
Empty
AB
Sh
GrnBlk
TEMP 3
Red TEMP 2TEMP 1
RIBBON
CABLE
BLK
R
EEV
5
4 3
2 1
SUCTION SENSOR
PRESS. TRANS.
Blk
Blk
Red
Wht
Yel
Grn
Org
Red
RSV-Blue
Empty
AB
Sh
GrnBlk
TEMP 3
Red TEMP 2TEMP 1
RIBBON
CABLE
BLK
LIGHTING CIRCUIT
R
B
-
+
R B
-
+
-
+
+ -
-
+
-
+
PLUG & SOCKET
PLUG
-
+
SHELF LIGHT LED
SHELF LIGHT LED
SHELF LIGHT LED
SHELF LIGHT LED
SHELF LIGHT LED
TOP LIGHT LED
STANDARD TOP LIGHT &
OPTIONAL SHELF LIGHTS
QTY ( 2 TO 5 ) PER CASE
-
+
R
B
-
+
-
+
-
+
-
+
PLUG & SOCKET
PLUG
-
+
SHELF LIGHT LED
SHELF LIGHT LED
SHELF LIGHT LED
SHELF LIGHT LED
SHELF LIGHT LED
R +
B -
OPTIONAL SHELF LIGHTS
6' CASE ONLY QTY ( 2 TO 5 )
PER CASE SIDE
FAN
FAN
M
PLUG
PLUG
M
PLUG
R
BLK
BLK
BLK RIBBED
BLK/BL
SWITCH
LIGHT
RED/WHITE
ANTI-SWEAT HEATER
W
W
R
G
BLK
W
POWER
SUPPLY
24V. OUTPUT
B -
R +
W = WHITE
R = RED
BR = BROWN
G = GREEN
BL = BLUE
Y = YELLOW
COLOR CODE
BLK = BLACK
Y/G = YELLOW/GREEN STRIPE
BLK/BL = BLACK/BLUE STRIPE
EVAP FANS
TYPICAL
208 - 240 VOLTS
50/60 HERTZ
1 PHASE
BLK
BLK
W
TEMP. PROBE PBI
DEFROST PROBE PB2
W
CAREL
CONTROLLER
11
10
9 8
76
5
4
BLK
OR
RED
BLK
OR
RED
Y
R
-
+
TOP LIGHT LED
-
+
Refrigerated Self-Serve Merchandiser (High Profile) Page 44

Table of Contents