EasyManua.ls Logo

Fermax Bruto - Panel Parameter Settings; MDS City Panel Setup

Fermax Bruto
60 pages
Print Icon
To Next Page IconTo Next Page
To Next Page IconTo Next Page
To Previous Page IconTo Previous Page
To Previous Page IconTo Previous Page
Loading...
45
VDS - DIRECT - DIGITVDS - DIRECT - DIGIT
VDS - DIRECT - DIGITVDS - DIRECT - DIGIT
VDS - DIRECT - DIGIT
AL - KITAL - KIT
AL - KITAL - KIT
AL - KIT
s 199s 199
s 199s 199
s 199
VDS - DIRECT - DIGITVDS - DIRECT - DIGIT
VDS - DIRECT - DIGITVDS - DIRECT - DIGIT
VDS - DIRECT - DIGIT
AL - KITAL - KIT
AL - KITAL - KIT
AL - KIT
s 199s 199
s 199s 199
s 199
+
-
+
L
L
+
-
L
-
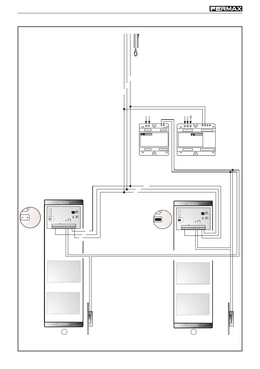
1
2
Ct
L
B
S
EXT.
INT.
C
B
No
+-
+12
Nc
JP2
JP2
Ct
L
B
S
EXT.
INT.
C
B
No
+-
+12
Nc
JP2
18 Vdc
12 Vac
-+-+
Vac
18 Vdc
~~
Vac
12 Vac
12 Vac 12 Vac
JP2
PLACA
TELEFONO
PLACA
TELEFONO
VDSVDS
VDSVDS
VDS
DIRECT - DIGITAL

Table of Contents

Other manuals for Fermax Bruto

Related product manuals