EasyManua.ls Logo

Ferno Pegasus - User Guide 2-Part Track-Mounted Floor Lock (Unwin System); Floor Lock Assembly Management (Unwin)

Ferno Pegasus
22 pages
Print Icon
To Next Page IconTo Next Page
To Next Page IconTo Next Page
To Previous Page IconTo Previous Page
To Previous Page IconTo Previous Page
Loading...
FERNO/MAN/01/18/159/UK 8 Pegasus Trolley
User Guide for 2-part Track-Mounted Floor Lock (255-mm Gauge NMI System)
255
GAUGE
TRACKING
FOOT
END
HEAD
END
FRONT OF
VEHICLE
VEHICLE OFFSIDE WALL
HEAD END
FLOOR LOCK
SLOTS FOR ADJUSTMENT
OF LOCKING DEVICES
PERMANENT
POSITIONAL
GUIDE PLATE
FOOT END
FLOOR LOCK
PERMANENT POSITIONAL
GUIDE PLATE
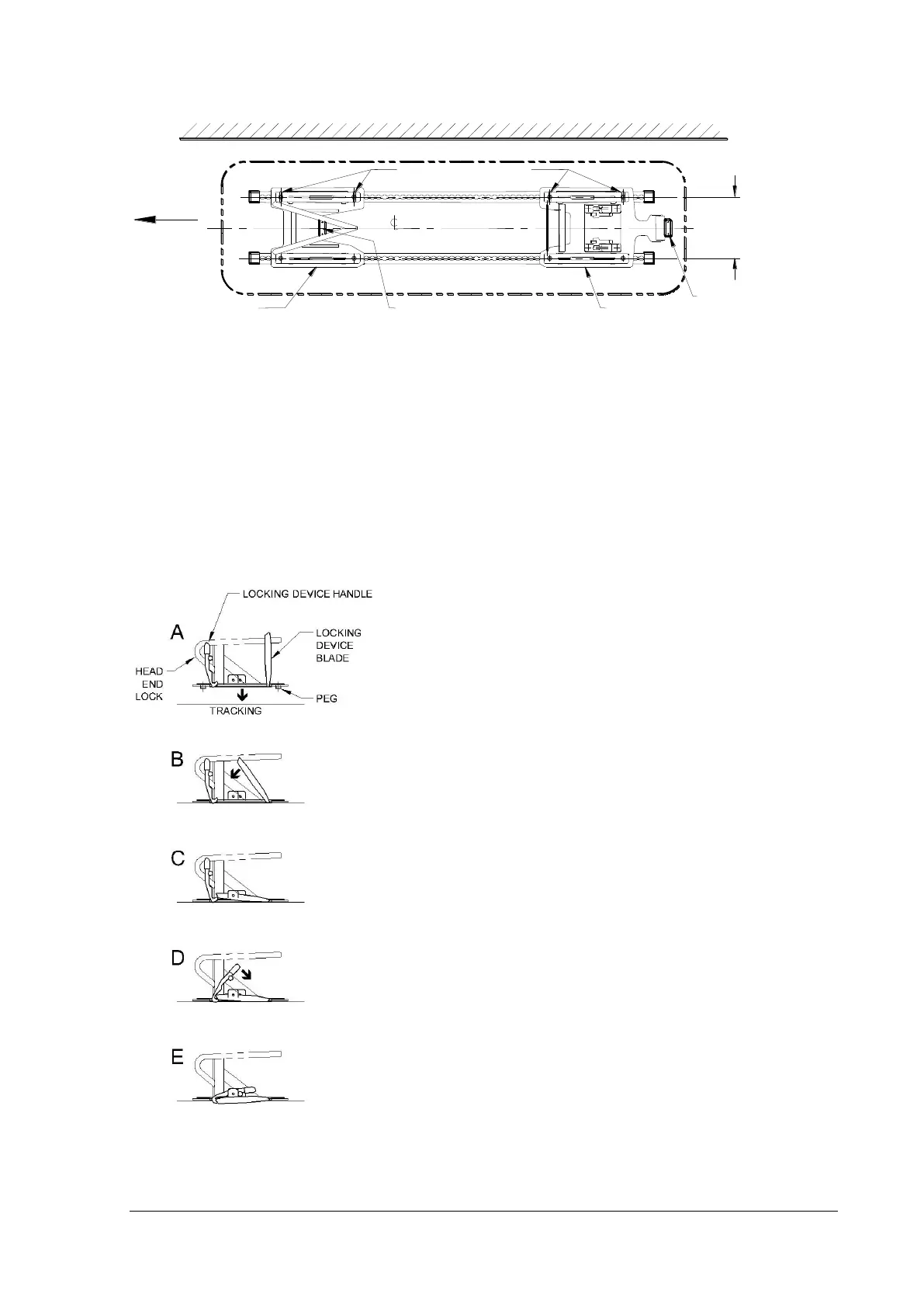
1. Removal of Head End and Foot End Lock Assemblies
On each locking assembly, retract the plunger and pull up release handle and
blade of both locking devices.
Remove lock assemblies.
The small positional guide plates at the head end and foot end must remain fitted
to the floor of the vehicle.
2. Installation of Head End Lock Assembly
As shown in diagram A (left), ensure handle and
blade of locking devices are in the fully open (up)
position.
Adjacent to the positional guide plate fitted to the
vehicle floor between the tracking at the head
end, locate the pegs on the underside of the lock
assembly in the tracking.
As shown in diagrams B & C, push blade of each
locking mechanism down by hand until it stops.
Push handle of each locking mechanism fully
down (diagram D) until the integral plunger locks
into place (diagram E).
Test for security & safety.
3. Installation of Foot End Lock Assembly
Install foot end lock assembly in exactly the same
way as above adjacent to the positional guide plate
at the foot end.

Related product manuals