EasyManua.ls Logo

Ferroli VTP 15 - Page 12

Ferroli VTP 15
Print Icon
To Next Page IconTo Next Page
To Next Page IconTo Next Page
To Previous Page IconTo Previous Page
To Previous Page IconTo Previous Page
Loading...
12
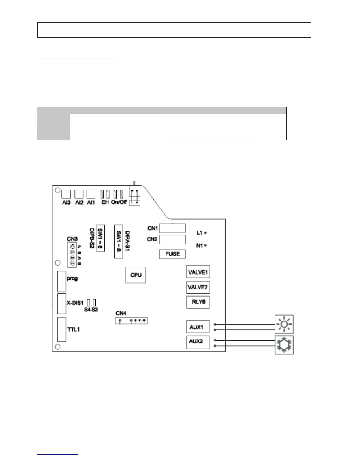
Collegamento a segnali IN-OUT
L’unità permette il collegamento a segnali di input od output che sono in grado di modificare il funzionamento
dell’unità stessa in relazione alle diverse esigenze o situazioni d’impiego.
Sono in particolare disponibili:
Segnali di output
In relazione a come l’unità sta operando vengono attivati dei segnali in uscita.
Sono disponibili:
Sigla Funzione Caratteristica Note
AUX 1
Si attiva quando l’unità chiede di
funzionare a caldo
Normalmente aperto Contatto libero
AUX 2
Si attiva quando l’unità chiede di
funzionare a freddo
Normalmente aperto Contatto libero
INSTALLAZIONE
Fig. 3

Related product manuals